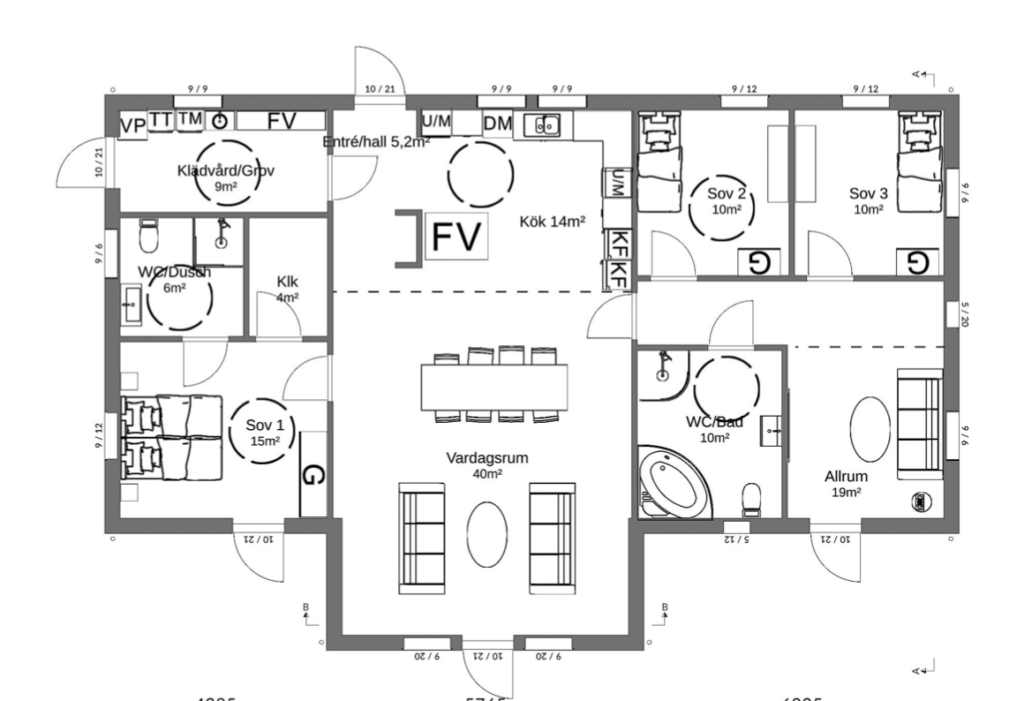
Planløsning

Planlösning

Om bygningen

Vores byggesæt er nemme at samle og leveres komplette. Her kan du se, hvad denne specifikke model består af. Du kan altid ændre de medfølgende materialer ved at ændre vores tegnesystem eller ringe til os på 0322-41800, så hjælper vi dig.

  • Vægblokke, 68 × 145 mm ramme, læhegn, luftlægte. Leveres med 145 mm isolering monteret i blokkene og diffusionsplast.
  • Vandret skinnepanel, grundet hvid. Leveres løst.
  • Ekstra bjælkelag og isolering for yderligere 70 mm isolering.
  • Spånplade og gips til indvendig væg. Leveres løst.
  • Den samlede vægtykkelse er 284 mm.
  • Vinduer fra Elitfönster, beklædt med aluminium med U-værdi 1,0. Antal og mål i henhold til plantegning. Leveres samlet i vægblokke. Udvendige beklædninger og plader leveres løse.
  • Fransk vindue fra Elitfönster, aluminiumsbeklædt U-værdi 1,0. Antal og mål i henhold til plantegning. Leveres samlet i vægblokke. Udvendige beklædninger og plader leveres løse.
  • Yderdøre fra Ekodoor U-værdi 1.0. Antal og mål i henhold til plantegning. Leveres samlet i vægblokke. Udvendige beklædninger og plader leveres løse.
  • Fritstående, CE-mærkede spærtagspær med åben udhæng.
  • Taget består af et undertag lavet af rå spunsvægge, tagpap, lægter og betontagsten.
  • Loft med diffusionsplast, afstandsbjælker og 13 mm gipsplader, forberedt til isolering med løsuld.
  • Loftstrappe.
  • Vindfløje af træ med dækplade.
  • Tagafvanding, tagrender og nedløbsrør af metalplader.
  • Forsegling.
  • Udluftningsåbninger til ventilation af loftet.
  • Søm, skruer og monteringsbeslag.
Vil du ændre eller tilføje materialer og se, hvad monteringen koster?  Klik her  for at konfigurere din bygning.

I denne bygning indgår

Vores byggesæt er lette at samle og leveres komplette. Her kan du se, hvad netop denne bygning består af.

Et feriehus eller måske din drømmevilla. Dette hus er ideelt til begge formål. Med tre store soveværelser samt et kontor/soveværelse og to badeværelser er der plads til familien og gæster. Med stue og spisestue i ét forbundet med det velplanlagte køkken i en vinkel, skaber du et dejligt socialt område, hvor du kan nyde middagen uden at kigge direkte ind i køkkenet. En ekstra stue kan adskilles med en skydedør eller dobbeltdør og bliver dermed et afsides sted at hygge sig foran tv’et. Store vinduer og franske døre giver udsigt til terrassen og haven. Placer huset lige på grunden og få et fantastisk solrigt område i læ, hvor du kan møde foråret tidligt i solbriller og t-shirt.

Ændr udseendet
Vil du se, hvordan huset ser ud med sprossede vinduer eller metaltag? Vil du udvide eller ændre plantegningen?  Åbn den i vores tegnesystem  og ændr den, som du ønsker.

Hvad koster det nøglefærdigt?
Når du bestiller et hus hos os hos Mellby Home, kan vi hjælpe dig helt frem til den færdige råhus. Indretning, grundplanlægning osv. kan du få en pris fra en entreprenør, eller måske gør du det selv. Du er velkommen til at bruge vores smarte  husbyggerkalkulation  til at lave et budget eller en produktionsomkostningskalkulation til banken.

Materialer til tilvalg

Vores byggesæt er produceret i Sverige med materialer fra førende leverandører. Med vinduer og døre monteret i vægmodulerne, er det let og hurtigt at bygge. Her kan du læse om, hvad der indgår og hvilke tilvalg du kan gøre. Kontakt os, hvis du har nogle spørgsmål.

Læs mere