2-planshus 16945

2 plans hus med 5 soveværelser og to store badeværelser. En luftig planløsning skaber et dejligt og funktionelt hjem for familien.
7.7 m x 14.5 m
108 m2
195 m2
5 st
2 st
5.7 m
7.3 m
Se planløsning

Fra 758 280 kr

Inkl. Moms. Eksklusiv udvendig og indvendig montage*

Se hvad der er indeholdt Prisforespørgsel Tegn videre og se prisen

Planløsning

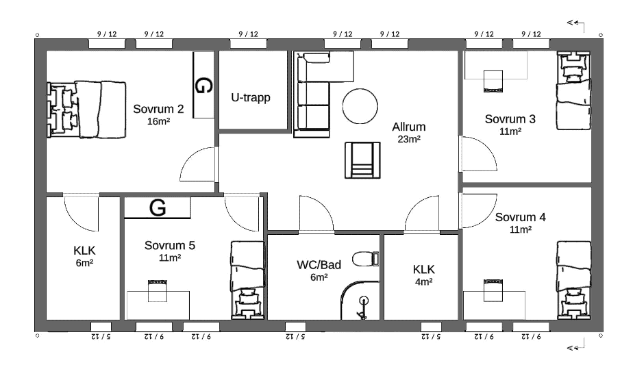
Undervåning

Planlösning undervåning

Övervåning

Planlösning övervåning

Om bygningen

Rummeligt 2-etagers hus med moderne design og en luftig planløsning, hvor alle værelser har en god størrelse. Der er plads til, at hele familien kan hygge sig. Tagindgangen bryder huset flot op og giver et imødekommende indtryk.

Du bydes velkommen af ​​en lys entré med udsigt til køkken, stue og en smuk U-formet trappe. Køkken og stue har en åben planløsning med en kortere skillevæg, der giver god opbevaring i køkkenområdet og plads til et TV eller komfur i stuen. Den korte skillevæg skaber også en hyggelig fornemmelse. Et stort soveværelse, der også kan fungere som gæsteværelse og kontor, er placeret med en flot udsigt over grunden. Et vaskerum med egen indgang skaber enkelhed i hverdagen. Et stort badeværelse med bruser er centralt placeret i stueetagen.

Overetagen har fire soveværelser og en stue med plads til et tv. Soveværelset har eget walk-in closet. De mindre soveværelser er også veludstyrede og giver plads til garderobeskabe og skriveborde. Overetagen har også et rummeligt badeværelse og et ekstra walk-in closet til opbevaring.

Dette er et dejligt moderne hus med masser af plads til familien.

Skift udseende

Vil du tilføje flere vinduer eller teste, hvordan det ser ud i liggende format? Vil du tage en rundvisning i 3D og bruge AR til at teste, hvordan huset ser ud på din grund?  Åbn det i vores tegnesystem,  og ret det, som du ønsker.

Hvor meget koster det nøglefærdigt?

Når du bestiller et hus hos os hos Mellby Home, kan vi hjælpe dig helt frem til den færdige råhus. Du kan få en pris på indretning, grundplanlægning osv. fra en entreprenør, eller måske kan du selv gøre det. Brug gerne vores smarte  husbyggerkalkulation til at lave et budget eller en produktionsomkostningskalkulation til banken.

I denne bygning indgår

Vores byggesæt er lette at samle og leveres komplette. Her kan du se, hvad netop denne bygning består af.

Vores byggesæt er nemme at samle og leveres komplette. Her kan du se, hvad denne specifikke model består af. Du kan altid ændre de medfølgende materialer ved at ændre vores tegnesystem eller ringe til os på 70101780, så hjælper vi dig.

  • Vægblokke, 68×145 mm ramme, læhegn, luftlægte og stående notpanel, grundet hvid. Leveres med 145 mm isolering monteret i blokkene og diffusionsplast.
  • Ekstra bjælkelag og isolering for yderligere 70 mm isolering.
  • Spånplade og gips til indvendig væg. Leveres løst.
  • Den samlede vægtykkelse er 284 mm.
  • Gulvbelægning mellem under- og overetage 45 x 220 mm med gulvspånplader og 220 mm isolering.
  • Aluminiumsbeklædte vinduer fra Elitfönster med sprosser. U-værdi 1,0. Antal og størrelse i henhold til plantegning. Leveres samlet i vægblokke med udvendige persienner, foring og plader.
  • Aluminiumsbeklædte vinduesdøre fra Elitfönster, u-værdi 1,0. Antal og størrelse i henhold til plantegning. Leveres samlet i vægblokke med udvendige persienner, foring og plader.
  • Forbeklædte gavl.
  • CE-mærkede spærtagspær med åben udhæng.
  • Taget består af et undertag lavet af rå spunsvægge, tagpap, lægter og betontagsten.
  • Loft ovenpå med diffusionsplast, afstandsbjælker og 13 mm gipsplader, forberedt til isolering med løsuld.
  • Nederste etageloft med diffusionsplast, afstandsbjælker og 13 mm gipsplader.
  • Loftstrappe.
  • Vindfløje af træ med dækplade.
  • Tagafvanding, tagrender og nedløbsrør af metalplader.
  • Forsegling.
  • Udluftningsåbninger til ventilation af loftet.
  • Søm, skruer og monteringsbeslag.
  • Entréloft medfølger ikke i leveringen

Vil du ændre eller tilføje materialer og se, hvad monteringen koster?  Klik her  for at konfigurere din bygning.

Materialer til tilvalg

Vores byggesæt er produceret i Sverige med materialer fra førende leverandører. Med vinduer og døre monteret i vægmodulerne, er det let og hurtigt at bygge. Her kan du læse om, hvad der indgår og hvilke tilvalg du kan gøre. Kontakt os, hvis du har nogle spørgsmål.

Læs mere

2-planshus 16945

Prisforespørgsel Tegn videre og se prisen