2-planshus 28328

2-etagers hus med tilhørende garage. Store vinduer på bagsiden skaber en fantastisk udsigt over ejendommen. Boligareal på 183 kvm og garagen er 49 kvm.
6 m x 10 m
183 m2
183 m2
3 st
2 st
5.7 m
6.81 m
Se planløsning

Fra 943 358 kr

Inkl. Moms. Eksklusiv udvendig og indvendig montage*

Se hvad der er indeholdt Prisforespørgsel Tegn videre og se prisen

Planløsning

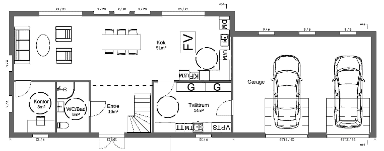
Undervåning

Planlösning undervåning

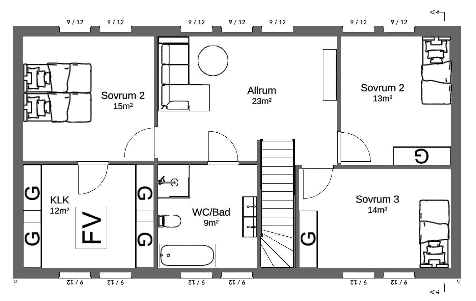
Övervåning

Planlösning övervåning

Om bygningen

Velkommen til et herskabeligt hjem i form af en 2-etagers villa kombineret med en dobbeltgarage. Dette hus passer ind i de fleste miljøer og har en rummelig planløsning. Den store dobbeltgarage, som tilgås fra vaskerummet uden at man behøver at træde ud af huset, er intet mindre end luksus hver dag!

Huset har en moderne stil med et lavt gavltag dækket af tagplader. Indgangssiden med to motoriserede garageporte og et stort verandatag giver et imødekommende og herskabeligt indtryk. Bag huset er terrassen, som i dette eksempel er blevet til et poolområde. De store vinduespartier lukker masser af lys ind og giver en smuk udsigt. På sommerdage åbner begge skydedøre op for at skabe nem adgang til husets køkken, og Foch lader huset fortsætte ud i haven.

Nedenunder

Entréhallen er stor og rummelig. Du kan nemt bygge opbevaringsplads under trappen og også få plads til en hattehylde og garderobeskabe. Til venstre er et toilet og et badeværelse med bruser. Til højre er vaskerummet med plads til både vask og tørring af tøj samt opbevaring. Køkken og stue er placeret langs hele underetagens langside og tilbyder en storslået udsigt gennem de mange store vinduer. Det lange, sammenhængende rum giver mulighed for at møblere til de fleste sociale lejligheder. I stueetagen er der også plads til et kontor, eller hvis du ønsker at bruge det som gæsteværelse. Der er også mulighed for møblering med seng for at opfylde tilgængelighedskrav med et afskærmet soveværelse i entréplan.

Ovenpå

Trappen til øverste etage fører dig til stuen med plads til et tv og/eller et legeområde til børnene. Vi har skabt to rummelige børneværelser, da vi ønsker at give plads til, at børnene kan nyde deres værelse både alene og sammen med en ven. Der er plads til et skrivebord til lektier og spil. Vi har også designet ordentlige garderobeskabe på børneværelserne. Det store soveværelse, eller master bedroom som mange nu om dage siger, er stort og luftigt med eget walk-in closet. Her er plads til både tøj og hvis du vil opbevare andre ting til huset. Vi har designet dette eksempel med garderobeskabe langs væggene og en disk i midten til opbevaring af ting som undertøj, smykker og accessories. Praktisk og elegant.

Skift udseende

Vil du tegne din egen plantegning eller ændre taget til et gavltag? Vil du installere endnu flere vinduer eller udskifte dobbeltdøren i entréen med en enkelt?  Åbn den i vores tegnesystem  og ret den efter behov.

Hvor meget koster det nøglefærdigt?

Når du bestiller et hus hos os hos Mellby Home, kan vi hjælpe dig helt frem til den færdige råhus. Du kan få en pris på indretning, byggepladsplanlægning osv. fra en entreprenør, eller måske kan du gøre det selv. Brug gerne vores smarte husbyggeriberegner til at lave et budget eller en produktionsomkostningsberegning for banken.

I denne bygning indgår

Vores byggesæt er lette at samle og leveres komplette. Her kan du se, hvad netop denne bygning består af.

  • Vægklodser, 68 × 145 mm ramme, vindskærm, luftlægte. Leveres med 145 mm isolering monteret i blokkene og diffusionsplast.
  • Vandret skinnepanel, grundet hvid. Løst leveret.
  • Ekstra bjælkelag og isolering for yderligere 70 mm isolering.
  • Spånplader og gips til indvendig væg. Leveres løst.
  • Den samlede vægtykkelse er 284 mm.
  • Gulvplade mellem under- og overetage 45 x 220 mm. med gulvspånplader og 70 mm isolering.
  • Vinduer fra Elitfönster, beklædt med aluminium med en U-værdi på 1,0. Antal og dimensioner i henhold til plantegning. Leveres samlet i vægblokke. Udvendige foringer og plader leveres løse.
  • Fransk vinduesdør fra Elitfönster, aluminiumsbeklædt U-værdi 1,0. Antal og dimensioner i henhold til plantegning. Leveres samlet i vægblokke. Udvendige foringer og plader leveres løse.
  • Yderdøre fra Diplomat Dörrar U-værdi 1,1. Antal og dimensioner i henhold til plantegning. Leveres samlet i vægblokke. Udvendige foringer og plader leveres løse.
  • Garageport Crawford størrelse og antal i henhold til plantegning inklusive løs portmotor leveret
  • Forbeklædte gavl.
  • Fritstående, CE-mærkede spærtagspær med åben udhæng.
  • Taget består af et undertag af rå metalplader, tagpap og Plannja trend metaltag.
  • Loft ovenpå med diffusionsplast, afstandsbjælker og 13 mm gipsplader, forberedt til isolering med løsuld.
  • Nederste etageloft med diffusionsplast, afstandsbjælker og 13 mm gipsplader.
  • Loftstrappe.
  • Vindfløje af træ med dækplade.
  • Tagafvanding, tagrender og nedløbsrør af metalplader.
  • Forsegling.
  • Udluftningsåbninger til ventilation af loftet.
  • Søm, skruer og monteringsbeslag.

Vil du ændre eller tilføje materialer og se, hvad installationen koster?  Klik her  for at konfigurere din bygning.

Materialer til tilvalg

Vores byggesæt er produceret i Sverige med materialer fra førende leverandører. Med vinduer og døre monteret i vægmodulerne, er det let og hurtigt at bygge. Her kan du læse om, hvad der indgår og hvilke tilvalg du kan gøre. Kontakt os, hvis du har nogle spørgsmål.

Læs mere

2-planshus 28328

Prisforespørgsel Tegn videre og se prisen