1,5-kerroksisessa omakotitalossa on yläkerrassa kaunis viisto katto
1,5-kerroksisen omakotitalo suunnitteleminen
Mellby Home ei suunnittele talomalleja, joihin voi tehdä vain pieniä muutoksia. Rakennusjärjestelmämme avulla saat täyden vapauden suunnitella unelmatalosi. Joustavien toimitusvaihtoehtojemme avulla voit valita, haluatko talosi pystytettynä vai toimitettuna elementteinä ja pystyttää sen itse. 1,5-kerroksisesta omakotitalosta on saatavana useita vakioleveyksiä, ja voit suunnitella siitä niin pitkän kuin haluat. Kattolyhtyjen ja kattoikkunoiden ja muiden muokkausten avulla saatavana on miljoonia erilaisia malleja. Kokeile iArchitect-suunnitteluohjelmaamme tai lähetä tarjouspyyntö.
Esimerkki 1,5-kerroksisesta omakotitalosta
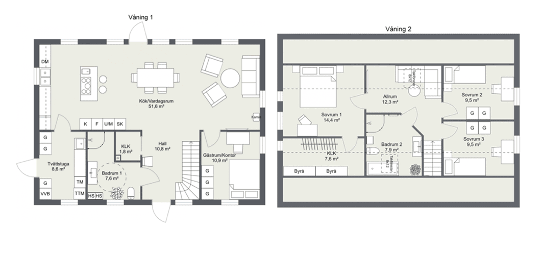
Inspiraatiota kaipaaville olemme suunnitelleet 1,5-kerroksisen esimerkkitalon. Voit luonnollisesti tilata sen juuri sellaisena tai viedä sen suunnitteluohjelmaan ja tehdä siihen muutoksia haluamiisi kohtiin. Alla olevien inspiraatiokuvien 1,5-kerroksisen omakotitalon sisäpinta-ala on 158 m2 (alakerta 93 m2 ja yläkerta 65 m2) ja rakennuspinta-ala 105 m2. Näet olohuoneen suurten ikkunoiden sisään päästämän valon jo avatessasi ulko-oven. Tässä talossa on tilavat yhteiset tilat ja paljon säilytystilaa arjen helpottamiseksi. Keittiön ja olohuoneen avoin pohjaratkaisu muodostaa viihtyisän yhteisen tilan ja saa valon virtaamaan kauniisti. Yläkerrassa sijaitsevat perheen makuuhuoneet, ja suuren makuuhuoneen yhteydessä on pukeutumishuone. Kaikki huoneet, joissa on vesipiste ja lattiakaivo, on sijoitettu strategisesti putkivetojen helpottamiseksi, mikä alentaa kustannuksia. Avaa suunnitteluohjelma ja tee taloon haluamasi muutokset.
