Så skapar du en smart planlösning för ditt hus
Den största fördelen med en öppen planlösning är att det skapar en känsla av rymd och ger mer sociala ytor. Det är härligt att kunna laga mat och samtidigt kunna se och prata med gäster eller med övriga familjen. Dessutom är det lättare att få plats med långbord när man har många gäster.
Skapa ytor för lugn och avskildhet
Trots många fördelar kan det vara bra att tänka in eventuella baksidor också. En del upplever till exempel att ett hus som är allt för öppet kan upplevas som mindre ombonat. Det kan därför vara bra att planera så att ditt hus får lite avdelade vrår som ger lugn. Fundera även på om du vill ha ett TV-rum som är avskilt och där du kan stänga en dörr, exempelvis barnen vill spela sällskapsspel, se en film eller spela TV-spel medan de vuxna har middag. Ni kanske känner igen följande ordväxling:
– Kan ni sänka ljudet på TV-n!
– Men ni pratar ju så högt så vi hör inte filmen!
Glöm inte förvaringsytor
En utmaning för öppna planlösningar är alltid förvaringen. När mellanväggar försvinner minskar även ytorna för bokhyllor och garderober. Uppskatta hur mycket förvaringsbehov du har och se till att skapa plats för dina saker. Får du för lite plats i huset kanske du kan planera för förvaring av mer sällan använda saker och säsongsbetonade kläder i garaget. Planera även fönster och dörrar så att du får plats med garderober i dina rum. Placera därför gärna fönster eller dörr minst 80 centimeter från den vägg mot vilken en garderob skall stå. Garderoben bygger ofta 60 centimeter på bredden och sen ska du kanske ha plats att sätta fönsterfoder (lister) runt fönstret.
Samla rum som kräver rördragning
För att minska antalet rördragningar för vatten och avlopp kan du tänka på att lägga till exempel badrum, kök tvättstuga och toalett så samlat som möjligt. Tvättstuga och kök brukar man planera i samma ände av huset för att spara rördragning. Kan du även få ihop badrum med lilla toaletten så sparar du en hel del pengar. Detta gäller självklart även i 1,5-planshus och 2-planshus. Se till att få eventuell toalett på övervåningen ovanför kök, badrum eller tvättstugan på nedervåningen.
Minska störande buller
En tvättstuga kan medföra lite buller när exempelvis tvättmaskinen ska centrifugera. Tänk på att försöka lägga tvättstugan så att den inte ligger vägg i vägg med ett sovrum eller TV-rum om du vill kunna tvätta på kvällar. Måste du ändå planera in tvättstugan bredvid ett sovrum så kan du alltid ställa maskinerna mot motsatt vägg från sovrummet. Det minskar bullret något. Detta gäller även andra maskiner som låter.
Samlade sovrum
Det finns fördelar med att ha familjens sovrum samlade i huset. Det är en trygghet för familjemedlemmarna att man har varandra nära. En viktig sak att tänka på är om olyckan skulle vara framme och ni skulle drabbas av en brand så är det en stor fördel om sovrummen ligger nära varandra och man kan varna och hjälpa varandra att komma ut i säkerhet. Ska du planera ett 1,5-planshus eller 2-planshus så kan du tänka på att planera in sovrummen på samma plan av samma anledning.
Planera för framtiden
Att planera huset för fler barn och mer yta kan göra att man spräcker sin budget. Ett bra tips är då att anpassa sig efter budgeten och lösa ett bra boende för nuvarande situation men att skapa en planritning som ger möjlighet att bygga ut i senare skede. Tänk på åt vilket håll ni skall lämna möjlighet att bygga ut och lägg gärna vardagsrum, kök eller en korridor i den änden av huset med möjlighet att öppna upp mot framtida utbyggnad.
Är man istället i situationen att hemmaboende familjemedlemmar kommer att minska och man är rädd att få tomma rum när barnen har flyttat ut så kan man planera för att dela av huset och skapa en uthyrningsdel.
Inspireras och testa dig fram
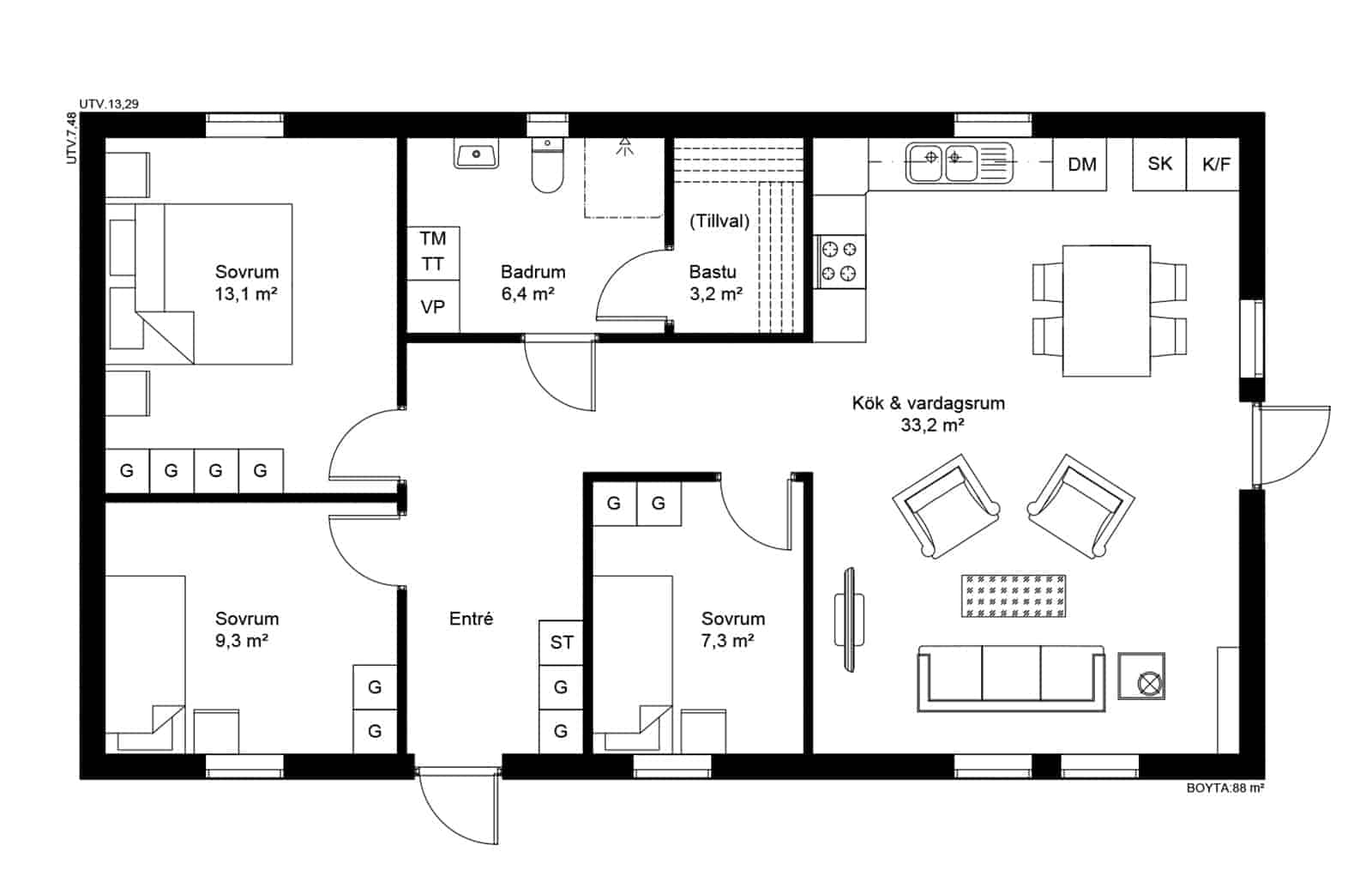
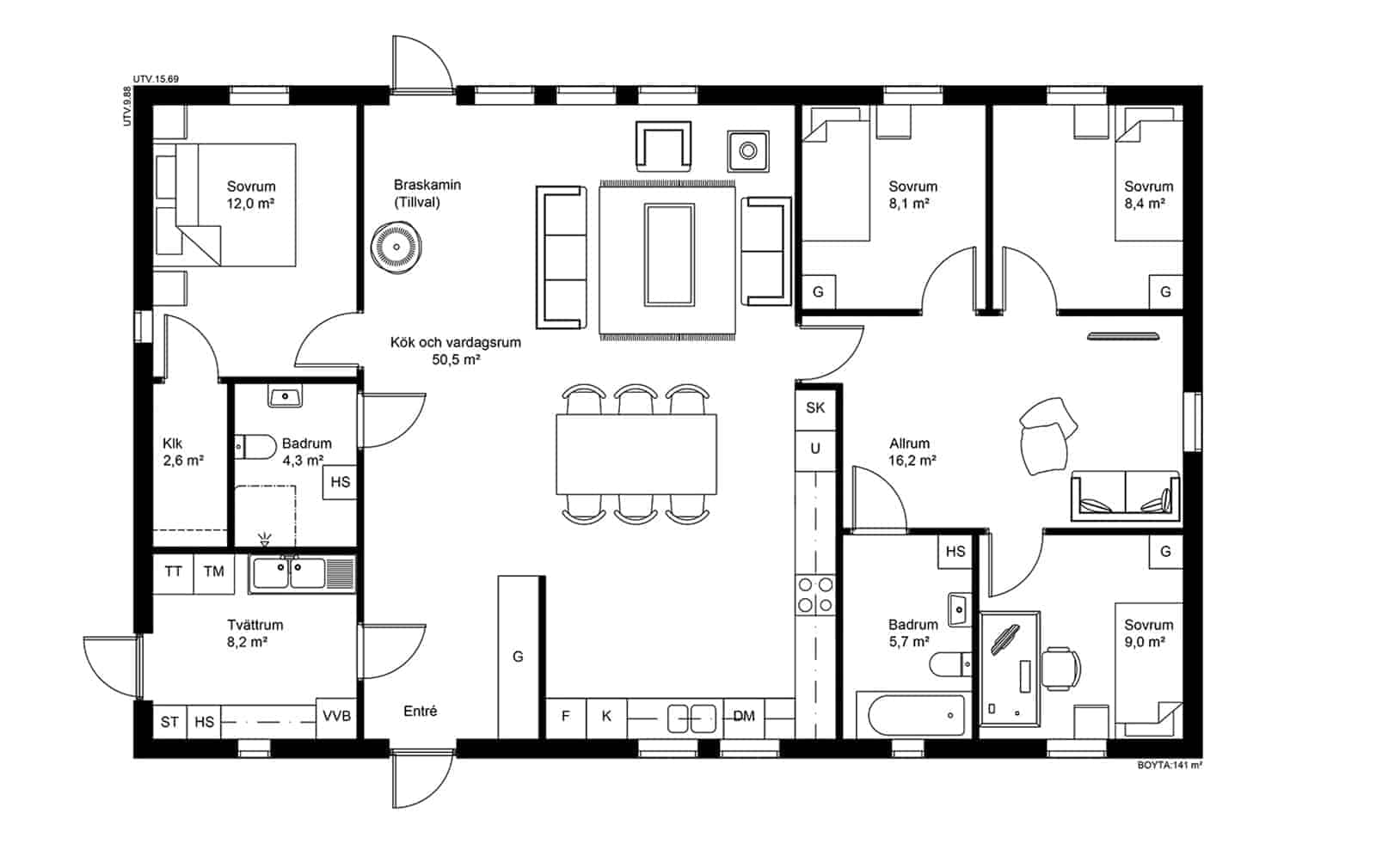
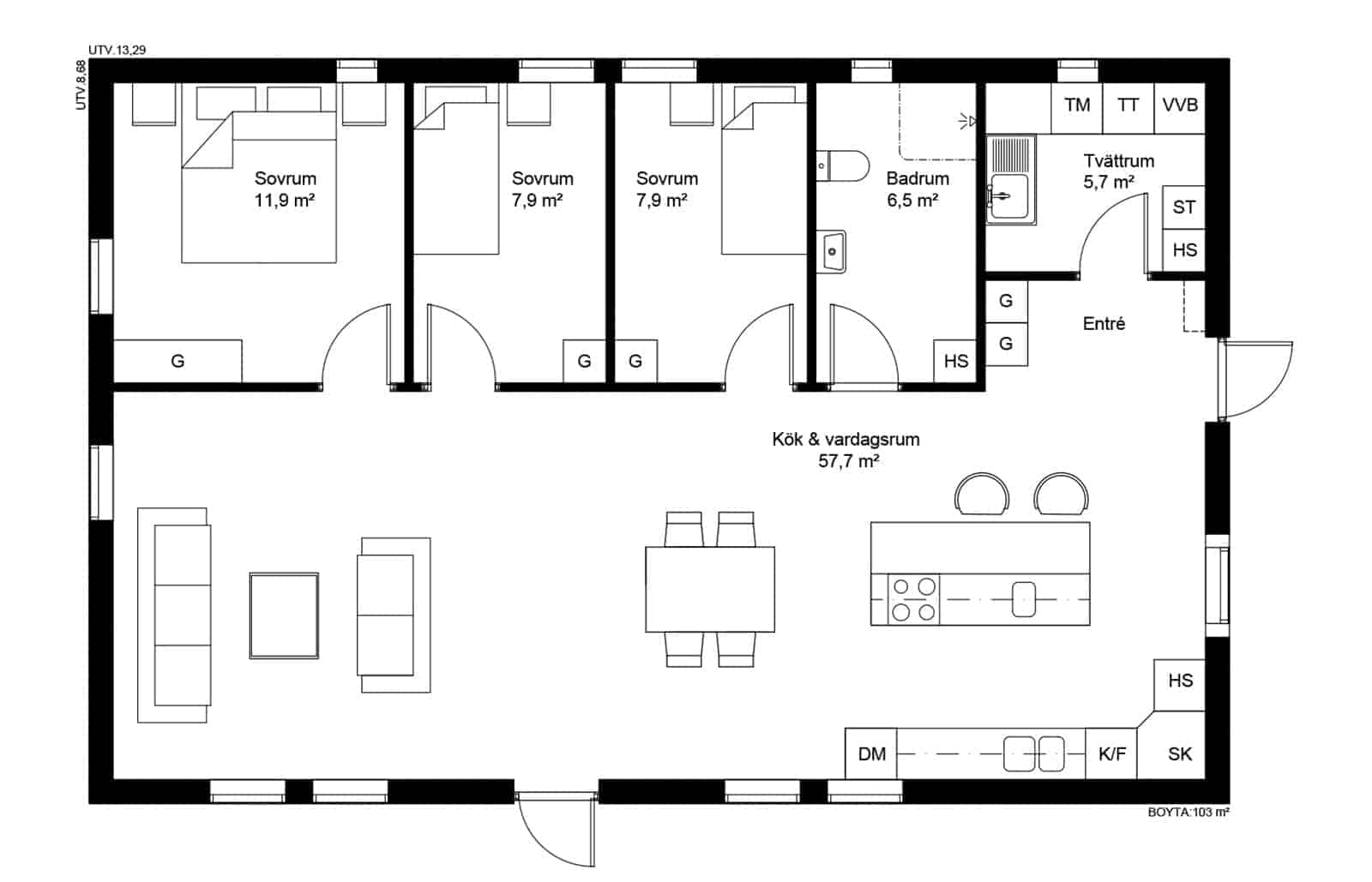
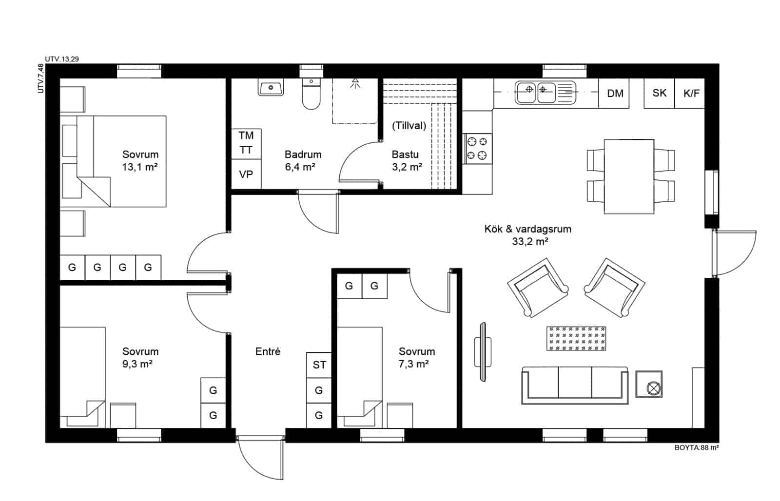
Nedan har vi samlat några exempel på planritningar för inspiration.





Lista på vanliga förkortningar på planritningar
| DM | Diskmaskin |
| F | Frys |
| FRD, Frd, FÖRR | Förråd |
| G | Garderob |
| G/L | Garderob/Linneskåp |
| HS | Högskåp |
| HS/U | Högskåp med ugn |
| IT | El & IT |
| K, KS | Kylskåp |
| K/F | Kylskåp/Frys |
| KK, KLK, Klk | Klädkammar |
| KPH | Kapphylla |
| KPR | Kapprum |
| KTT | Kombinerad tvättmaskin och torktumlare |
| L | Linneskåp |
| S | Skåp |
| SK | Skafferi |
| SK/K | Skafferi/kylskåp |
| ST | Städ |
| TM | Tvättmaskin |
| TP | Tvättpelare |
| TT | Torktumlare |
| WC | Toalett |
| WC/D | Toalett/Dusch |
| VP | Värmepump |
| VVP | Varmvattenberedare |
Dela med dig av innehållet