Parhus i fjällen med plats för 4-6 bäddar
I Branäs bygger vi parhus i 2-plan med två enheter om vardera 97 kvm.
Ett parhus med två enheter om vardera 97 kvm
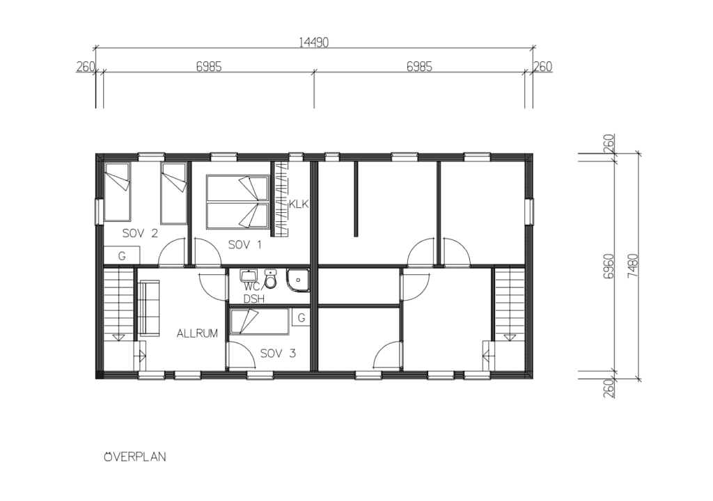
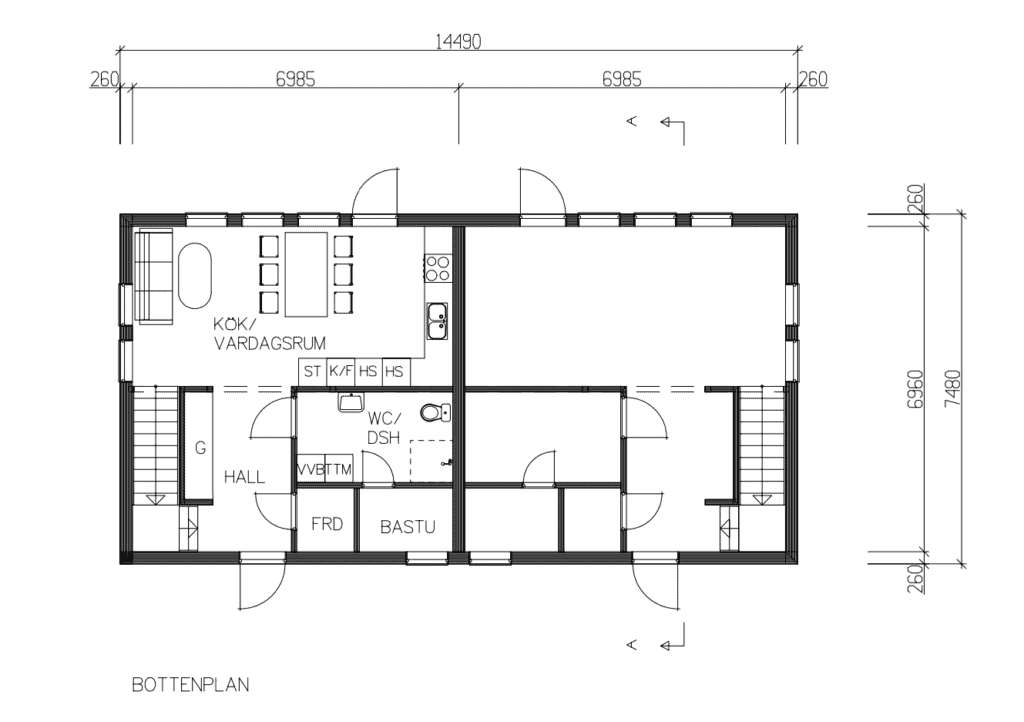
Ett rymligt parhus med möjlighet för 4-6 bäddar uppdelat på 3 sovrum.
Du kommer in i en rymlig hall med ordentligt utrymme för avhängning. Det fins även ett rymligt förråd i anslutning till hallen för att förvara kläder och utrustning. Nedervåningen rymmer sociala ytor med kök och vardagsrum. Badrum med anslutning till bastu. På övervåningen finns ett rymligt allrum med plats för soffa och tv, perfekt om barnen vill se en film ostört medan de vuxna fortsätter middagen. Det finns även toalett med dusch samt 3 sovrum med möjlighet till upp till 6 bäddar.
Material
Genomgående modernt rustik inredning som ska fungera över tid för både för familjen och för uthyrning. Nedervåningen har genomgående slipade och behandlade betonggolv. Badrummet har golv med klinker och helkaklade väggar. Resterande rum har stående grå träpanel. Fönster och dörrar i svart kontrasterar vacker till de grå väggarna. Golvvärme i hela undervåningen.
Övervåningen har parket med enstavig ek, grå träpanel på väggarna och svarta fönster och dörrar. Toaletten har klinkergolv och helkaklade väggar.

Dela med dig av innehållet