Logotyp

Planlösning

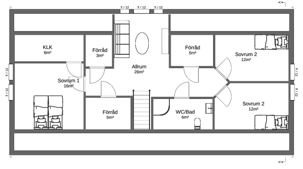
Undervåning

Planlösning undervåning

Övervåning

Planlösning övervåning

Om byggnaden

Ett familjehus i 1,5-plan med 5 sovrum och gott om förvaring inplanerat. Här erbjuds ni kök och vardagsrum i en stor öppen lösning som ger plats åt vardagens familjeliv men också middagar och fest. Takkupan är ett vackert inslag i fasaden och ger extra utrymme på övervåningen.

På nedervåning möts du av en stor och rymlig hall där det finns goda möjligheter att skapa bra förvaring även under trappan. Redan i entrén får du en inblick i vardagsrummet och möts av ljuset från de många fönstren. Det ger en var och välkomnande känsla redan när du kliver in i hemmet. Köket är stort och bra planerat med en köksö som fungerar som enklare matplats, yta för läxläsning samtidigt som du lagar mat eller som serveringsyta vid fest. Matsal och vardagsrum ligger i fil med öppen planlösning och blir tillsammans med köket ett naturligt utrymme att samlas och att umgås. Här finns även möjlighet att duka ut långbord vid högtider och få rum för alla vänner. Två sovrum är placerade på nedervåning och även ett avskiljt TV-rum. Tvättstugan har gott om utrymme och har en egen grovingång. Badrummet är centralt placerat och rymmer även dusch.

Övervåningen nås via trappan som har ett takfönster som ger ljus till både trappa och allrummet. Takkupan med den vackra kombinationen av fönster ger extra utrymme och ljus i övervåningen. med tre stora sovrum och gott om förvaringsutrymme finns gott om plats för familjelivet och även gäster som sover över. Allrummet på övervåningen ger utrymme för barn med kompisar som vill se film och umgås lite avskiljt. På övervåningen finner du även ett badrum med dusch.

Detta 1,5-planshus är inte bara vackert. Här finns också plats för ett härligt familjeliv även när barnen blivit större och kommer hem för att hälsa på med sin familj

Ändra utseende

Har du en egen idé för planlösning? Vill du se hur huset skulle se ut i en annan färg eller vill öppna huset i din telefon och placera det på tomten för att uppleva utsikten genom fönstren? Öppna det i vårt ritsystem och ändra som du vill och testa vår AR-funktion.

Vad kostar det nyckelfärdigt?

När du beställer ett hus av oss på Mellby Home kan vi hjälpa dig fram till färdigt skal. Interiör, planering av tomt m.m. kan du få pris av en entreprenör eller kanske gör du detta själv. Använd gärna vår smarta husbyggarkalkyl för att skapa en budget eller produktionskostnadskalkyl till banken.

Det här ingår i våra leveranser

Ingående material är det som i slutänden avgör om ett hus är dyrt eller billigt. Här kan du läsa om vad vi inkluderar i våra leveranser.

  • Väggblock, 68×145 mm stomme, vindskydd, luftläkt och stående spårpanel, grundmålad vit. Levereras med 145 mm isolering monterad i blocken samt diffusionsplast.
  • Extra regel samt isolering för ytterligare 70 mm isolering (installationsskikt). Levereras löst
  • Spånskiva och gips till insida yttervägg. Levereras löst.
  • Den totala väggtjockleken är 284 mm.
  • Bjälklag mellan under och övervåning 45×220 mm. Med golvspånskivor och 70 mm stegdämpande isolering.
  • Aluminiumklädda fönster från Elitfönster med U-värde 1,0. Antal och storlek enligt planritning. Levereras monterade i väggblock med utvändiga smygar, foder och plåtar.
  • Aluminiumklädd fönsterdörr från Elitfönster. Antal och storlek enligt planritning. Levereras monterade I väggblock med utvändiga smygar, foder och plåtar.
  • Takfönster Fakro: Antal och storlek enligt planritning.
  • Ytterdörrar från Ekodoor. Antal och storlek enligt planritning. Levereras monterade i väggblock med utvändiga smygar, foder och plåtar.
  • Färdigpanelade gavelspetsar.
  • 40° sadeltak. CE-märkta ramtakstolar med öppna takfötter.
  • Yttertak består av underlagstak av råspontluckor, takduk, läkt och betongtakpannor.
  • Innertak med diffusionsplast, glesreglar och 13 mm gipsskivor, förberett för isolering med lösull.
  • Snedtak övervåning 285 mm isolering, 12mm spånskiva samt 13 mm gipsskivor.
  • Vindstrappa, 1st.
  • Vindskivor av trä med täckplåt.
  • Takavvattning, rännor och stuprör i plåt.
  • Sylltätning.
  • Ventiler för ventilation av vinden.
  • Spik, skruv och infästningsbeslag.

Vill du ändra eller lägg till material samt se vad montage kostar? klicka här för att konfigurera din byggnad.

Ingående material

Grund

En bra grund är en mycket viktig start. Vi erbjuder flera olika tjocklekar på plattan vilket gör att du kan välja den isoleringstjocklek som passar ditt användningsområde.

Grundläggningspaket

Grunden till din byggnad är viktig, den ska bära upp ditt garage, hus eller fritidshus i kanske 100 år. Med våra grundläggningspaket har vi gjort det ännu enklare att bygga.

Mellby Home erbjuder dig ett komplett grundläggningspaket från Benders där du själv kan välja den isoleringstjocklek som passar för ditt användande. Du får en grundplatta av högsta kvalitet som dessutom är enkel att sätta så att du, om du vill, själv kan gjuta din grund till din byggnad.

En taktyp

Våra 1,5-plans hus finns med följande taktyper. I vårt ritverktyg eller offertförfrågan kan du själv konfigurera kombinationen av byggnad och tak.

Sadeltak 45°

Alla våra takstolar är CE-märkta. I standardutförandet är de dimensionerade för att klara snötyngd i snözon 2,5 men kan anpassas för högre snözon.

Väggar

Alla väggar till våra monteringsfärdiga hus levereras i färdiga moduler, normal bredd 1200 mm.

Väggarna är uppbyggda av:

  • Regelstomme
  • Luftningsläkt (viktigt för att ytterpanelen inte skall ruttna när du har en isolerad byggnad).
  • Isolering i vald tjocklek.
  • Fiberarmerat slitstarkt vindskydd.
  • Panel och syllisolering mot grunden.
  • Dörrar och fönster är monterade i väggelementen från fabrik om ej annat har valts.
  • 12 mm spånskiva – löst levererad
  • 13 mm gips – Löst levererad som ytskikt

Vi har flera val för uppbyggnad av vägg, i din materialbeskrivning som du får med din offert och avtal beskrivs den uppbyggnad som valts för just ditt projekt.

Dörrar och fönster

Du väljer själv vad som ska ingå när du gör en offertförfrågan. I din offert får du alltid med en materialbeskrivning som listar de val som du har gjort för ditt hus, fritidshus, garage eller carport.

Fönster

Vi levererar aluminiumklädda fönster från Elitfönster som standard. Dina fönster med max bredd 900 mm levereras monterade i väggblocken med yttre foder och droppbleck av färdiglackerad stålplåt monterade från fabrik. Vid liggande panel levereras foder och droppbleck löst. Välj själv hur många fönster och vilken utformning du vill ha för att få rätt ljusinsläpp och för att få rätt utseende på din byggnad. Din materialbeskrivning som följer med offert och avtal anger vilka fönster du valt till din byggnad och hur de kommer att levereras.

Ytterdörrar

Våra ytterdörrar kommer från det svenska företaget Ekodoor och levereras monterade i väggblocken med utvändiga foder och droppbleck av lackerad stålplåt. Vid liggande panel på ytterväggarna levereras foder och droppbleck löst.  Vid bredare dörrar än 1000 mm eller dubbeldörrar levereras dessa lösa med färdiga dörrhål. För hus ingår ej låscylinder eller trycke eftersom man oftast väljer egen låsserie och de flesta vill själva välja trycken. Din materialbeskrivning som följer med offert och avtal anger vilka dörrar som valts och hur de levereras.

Leveransformer

När du köper en byggnad av Mellby Home får du en byggnad av hög kvalitet med marknadens bästa garantier och en leverans som alltid är komplett, direkt till byggplatsen.

Som byggsats

Byggsatsen vi levererar hem till din tomt är lättmonterad och anpassad för både snickare och hemmabyggare. Eftersom våra väggblock håller en hög ”färdiggrad” tar det också kortare tid att montera våra byggnader och därmed blir inte bara byggsatsen utan hela projektet billigare.

Våra väggblock består av färdiga byggelement som är mestadels 1,20 m breda och som enkelt kan hanteras av två personer. Väggblocken levereras med eventuella dörrar och fönster monterade (om ej annat valts). Våra block levereras med 145 mm stomme med isolering och fuktspärr monterad. Ytterligare invändig regel och isolering levereras löst för montage på plats. Du kan alltid göra egna val hur du vill ha just din byggsats. Din materialbeskrivning i din offert och ditt avtal beskriver din valda byggsats.

Som stomrest (färdigt utvändigt)

För dig som snabbt vill ha upp ett vädersäkrat och tätt skal erbjuder vi stomrest leverans. Tillsammans med våra duktiga entreprenörer tar vi hand om:

  • Leverans av byggsats i blocksystem
  • Montering av levererad byggsats ovan grund

Du har alltid möjlighet att välja bort delar från vår leverans om du vill lösa vissa delar själv. I ditt avtal eller din offert anges alltid vad som ingår från oss.