Logotyp

1,5-planshus/fritidshus 16689

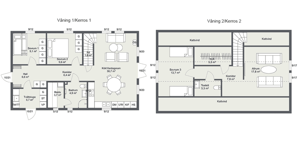
En öppen planlösning mellan kök och vardagsrum som ger fina sällskapsytor och ett vackert ljusflöde. Vi har planerat sovrummen för att många ska få plats men även för att ge utrymme till förvaring.
7.5 m x 12.1 m
91 m2
131 m2
3 st
2 st
3.1 m
6.9 m
Se planlösning

Från 751 570 kr

Inkl moms. Exklusive frakt, montage och inredning *

Se vad som ingår Få offert Rita vidare & få pris

Planlösning

Planlösning

Om byggnaden

Detta fritidshus i 1,5-plan är skapat med tankarna på en stuga i fjällen men det passar lika bra som sommarstuga eller som permanentbostad. Nedervåningen är välplanerad med tvättstuga, bastu och ett väl tilltaget badrum. Ett stort sovrum som även passar bra som gästrum finns i anslutning till entrén. Köket och vardagsrummet med sin öppna planlösning huserar i ena gaveländan av huset och rymdkänslan förstärks av de stora fönstren och fönsterdörrarna som släpper in ljus och skapar utsikt över omgivningen. Övervåningens planlösning är skapad för att många ska få plats men även för att ge utrymme tillförvaring. Det stora allrummet/TV-rummet får en härlig utsikt genom de stora fönstren i gaveln. Detta rum går även att göra om till sovrum för den som vill ha fler sovplatser.

Ändra utseende

Vill ni se hur huset ser ut utan takfot eller i andra färger eller material? Vill du bygga ut eller ändra planlösning? Öppna det i vårt ritsystem och ändra som du vill.

Vad kostar det nyckelfärdigt?

När du beställer ett hus av oss på Mellby Home kan vi hjälpa dig fram till färdigt skal. Interiör, planering av tomt m.m. kan du få pris av en entreprenör eller kanske gör du detta själv. Använd gärna vår smarta husbyggarkalkyl för att skapa en budget eller produktionskostnadskalkyl till banken.

Denna modell består av

Våra byggsatser är lätta att montera och levereras kompletta. Här kan du se vad just denna modell består av. Du kan alltid ändra på ingående material genom att ändra i vårt ritsystem eller ringa oss på 0322-41800 så hjälper vi till.

  • Väggblock, 68 × 145 mm stomme, vindskydd, luftläkt. Levereras med 145 mm isolering monterad i blocken samt diffusionsplast.
  • Liggande spårpanel, grundmålad vit. Löst levererad.
  • Extra regel samt isolering för ytterligare 70 mm isolering.
  • Spånskiva och gips till insida vägg. Levereras löst.
  • Den totala väggtjockleken är 284 mm.
  • Fönster från Elitfönster, aluminiumklädda med U-värde 1,0. Antal och mått enligt planritning. Levereras monterade i väggblock. Utvändiga foder och plåtar levereras löst.
  • Fönsterdörr från Elitfönster, aluminiumklädd U-värde 1,0. Antal och mått enligt planritning. Levereras monterade i väggblock. Utvändiga foder och plåtar levereras löst.
  • Ytterdörrar från Diplomat Dörrar U-värde 1,1. Antal och mått enligt planritning. Levereras monterade i väggblock. Utvändiga foder och plåtar levereras löst.
  • 40° sadeltak. CE-märkta fackverkstakstolar med öppna takfötter.
  • Yttertak består av underlagstak av råspont, takduk, läkt och betongtakpannor.
  • Innertak med diffusionsplast, glesreglar och 13 mm gipsskivor, förberett för isolering med lösull.
  • Vindskivor av trä med täckplåt.
  • Takavvattning, rännor och stuprör i plåt.
  • Sylltätning.
  • Ventiler för ventilation av vinden.
  • Spik, skruv och infästningsbeslag.

Vill du ändra eller lägg till material samt se vad montage kostar? klicka här för att konfigurera din byggnad.

Väldigt enkelt att bygga fritidshus själv men går att få monterat.

Våra byggsatser är väldigt enkla att bygga och det går snabbt. Tack vare färdiga väggblock med fönster och dörrar monterade i blocken får du snabbt ett tätt fritidshus på kort tid. Du kan även få hjälp av oss att göra markarbete, anlägga grund och montera ditt hus. Vill du få en offert med mer än bara byggsats, diskutera lösningar som passar dina behov och få tips inför ditt projekt?

Ring oss på 0322-41800 eller mejla oss på info.sv@mellbyhome.com.

Material och tillval

Våra byggsatser är tillverkade i Sverige med material från ledande leverantörer. Våra byggsatser gör det enkelt och snabbt att bygga och fönster och dörrar är monterade i blocken. Här kan du läsa om vad som ingår och vilka tillval du kan göra. Kontakta oss om du har några frågor.

Läs mer

1,5-planshus/fritidshus 16689

Få offert Rita vidare & få pris