Logotyp

Parhus 2-plan 17747

Skidstuga parhus i 2-plan med plats för 10 bäddar. Ett vackert och välplanerat parhus tänkt för fjällsemester. Med bastu, särskilt rum att hänga av och torka skidkläder samt generösa sociala ytor.
8.7 m x 16.9 m
147 m2
134 m2
Se planlösning

Från 1 532 006 kr

Inkl moms. Exklusive frakt, montage och inredning *

Se vad som ingår Få offert Rita vidare & få pris

Planlösning

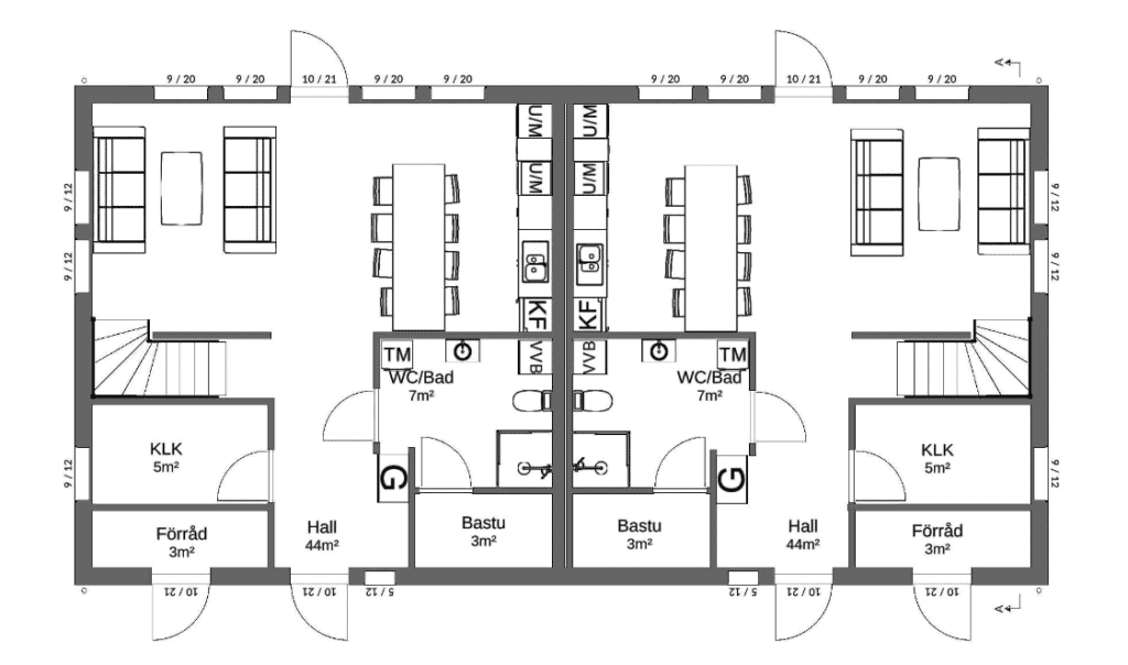
Undervåning

Planlösning undervåning

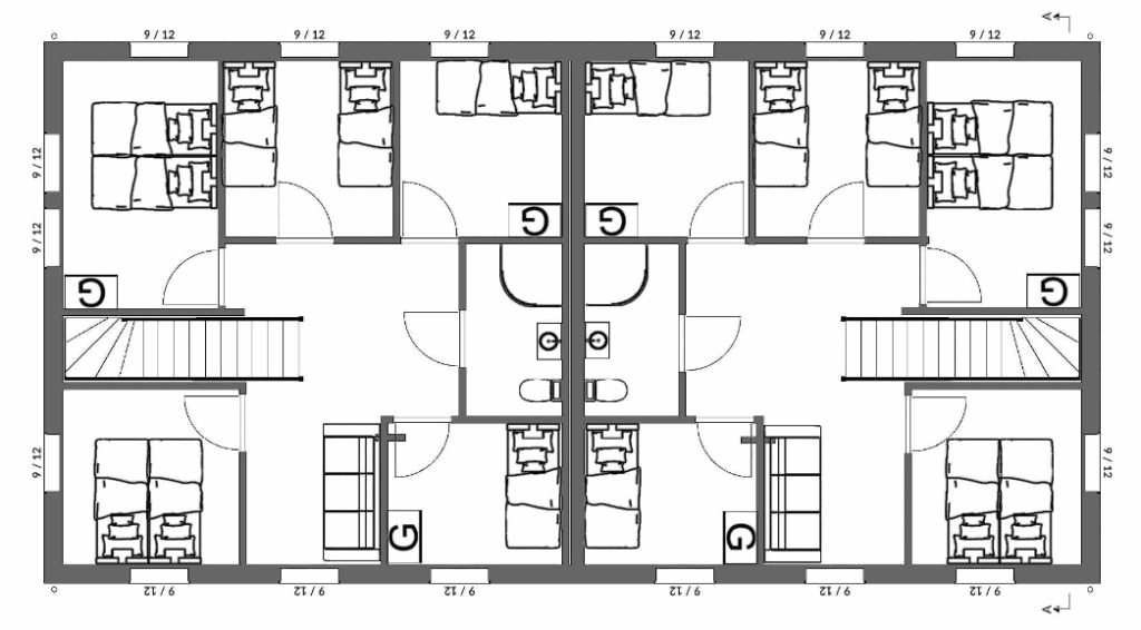
Övervåning

Planlösning övervåning

Om byggnaden

Ett fjällparadis i form av 2-plans parhus. Varje bostad har plats för upp till 10 bäddar och de många fönstren bjuder på utsikt över omgivningarna. Huset på bilderna har byggts på Ljunghyllan i Branäs och går att hyra via Branäsgruppen om man vill provbo. Byggnaden har en klassisk men ändå modern utformning som gör att den passar väl in i fjällandskapen. Planlösningen har utformats med tanke på ett praktiskt liv runt skidbackarna. Bastu och ett eget rum för att förvara pjäxor och torka kläder gör att detta hus verkligen uppskattas av de som bor här.

Nedervåning

Skidor och annan utrustning ställer man i skidförrådet innan man går in i stugan. Här möts du av en rymlig hall med gott om plats för att hänga av sig kläder. från entrén ser du genast del av vardagsrum och kök samt utsikten genom de stora fönstren vilket ger en välkomnande känsla. Pjäxrummet med plats för torkning av kläder ligger i direkt anslutning till ingången. Ett stort badrum med plats för tvättmaskin och torktumlare samt en bastu är placerad mellan entré och kök. Kök och vardagsrum i en öppen planlösning som ger utrymme att umgås. De stora fönstren i hela rummet ger gott om ljus och gör att boendet känns ännu  mer rymligt samt att det ger en fantastisk utsikt över uteplatsen och naturen.

Övervåningen

På övervåningen finner du 5 sovrum med totalt 10 bäddar. En rymlig toalett med dusch samt en tv hörna där barnen kan se på tv eller spela spel medans de vuxna umgås efter middagen. Att slippa snedtaken som blir när man bygger 1,5-plans skidstuga gör att du får plats med så mycket mer. Mer yta till förvaring och sängplatser och du slipper slå huvudet i snedtaket hela veckan.Vi har planerat in många fönster i byggnadens övervåning för att det ska vara ljust och fint samt ge möjlighet till vacker utsikt.

Ändra utseende

Vill ni se huset i en annan färg, utan spröjs eller med plåttak? Vill du ändra planlösning eller förlänga detta parhus till ett radhus? Öppna det i vårt ritsystem och ändra som du vill.

Vad kostar det nyckelfärdigt?

När du beställer ett hus av oss på Mellby Home kan vi hjälpa dig fram till färdigt skal. Interiör, planering av tomt m.m. kan du få pris av en entreprenör eller kanske gör du detta själv. Använd gärna vår smarta husbyggarkalkyl för att skapa en budget eller produktionskostnadskalkyl till banken.

Denna modell består av

Våra byggsatser är lätta att montera och levereras kompletta. Här kan du se vad just denna modell består av. Du kan alltid ändra på ingående material genom att ändra i vårt ritsystem eller ringa oss på 0322-41800 så hjälper vi till.

  • Väggblock, 68 × 145 mm stomme, vindskydd, luftläkt. Levereras med 145 mm isolering monterad i blocken samt diffusionsplast.
  • Stående spårpanel, grundmålad vit monterad på blocken.
  • Extra regel samt isolering för ytterligare 70 mm isolering (installationsskikt). Levereras löst.
  • Spånskiva och gips till insida vägg. Levereras löst.
  • Den totala väggtjockleken är 284 mm.
  • Bjälklag mellan under och övervåning 45 x 220 mm. med golvspånskivor och 70 mm isolering.
  • Fönster från Elitfönster, aluminiumklädda med U-värde 1,0. Antal och mått enligt planritning. Levereras monterade i väggblock med utvändiga foder och plåtar monterade.
  • Fönsterdörr från Elitfönster, aluminiumklädd U-värde 1,0. Antal och mått enligt planritning. Levereras monterade i väggblock med utvändiga foder och plåtar monterade.
  • Ytterdörrar från Diplomat Dörrar U-värde 1,1. Antal och mått enligt planritning. Levereras monterade i väggblockmed utvändiga foder och plåtar monterade.
  • Halvmånefönster oisolerat dekorfönster 2 st. monterade i gavelspets.
  • Fribärande, CE-märkta fackverkstakstolar med öppna takfötter.
  • Yttertak består av underlagstak av råspontluckor, takduk, läkt och betongtakpannor.
  • Innertak övervåning med diffusionsplast, glesreglar och 13 mm gipsskivor, förberett för isolering med lösull.
  • Innertak undervåning med diffusionsplast, glesreglar och 13 mm gipsskivor.
  • Vindstrappa, 2 st.
  • Vindskivor av trä med täckplåt.
  • Takavvattning, rännor och stuprör i plåt.
  • Sylltätning.
  • Ventiler för ventilation av vinden.
  • Spik, skruv och infästningsbeslag.

Vill du ändra eller lägg till material samt se vad montage kostar? klicka här för att konfigurera din byggnad.

Väldigt enkelt att bygga flerbostadshus själv men går att få monterat.

Våra byggsatser är väldigt enkla att bygga och det går snabbt. Tack vare färdiga väggblock med fönster och dörrar monterade i blocken får du snabbt ett tätt parhus eller radhus på kort tid. Du kan även få hjälp av oss att göra markarbete, anlägga grund och montera ditt hus. Vill du få en offert med mer än bara byggsats, diskutera lösningar som passar dina behov och få tips inför ditt projekt?

Ring oss på 0322-41800 eller mejla oss på info.sv@mellbyhome.com.

Material och tillval

Våra byggsatser är tillverkade i Sverige med material från ledande leverantörer. Våra byggsatser gör det enkelt och snabbt att bygga och fönster och dörrar är monterade i blocken. Här kan du läsa om vad som ingår och vilka tillval du kan göra. Kontakta oss om du har några frågor.

Läs mer

Parhus 2-plan 17747

Få offert Rita vidare & få pris