Leveransformer
När du köper en byggnad av Mellby Home får du en byggnad av hög kvalitet med marknadens bästa garantier och en leverans som alltid är komplett, direkt till byggplatsen.
Som byggsats
Byggsatsen vi levererar hem till din tomt är lättmonterad och anpassad för både snickare och hemmabyggare. Eftersom våra väggblock håller en hög ”färdiggrad” tar det också kortare tid att montera våra byggnader och därmed blir inte bara byggsatsen utan hela projektet billigare.
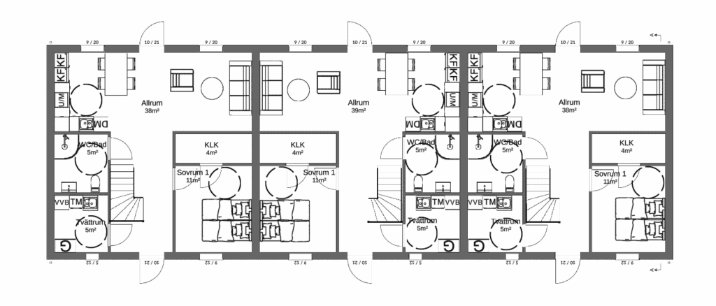
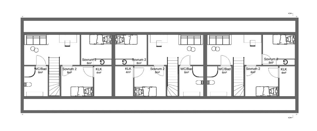
Våra väggblock består av färdiga byggelement som är mestadels 1,20 m breda och som enkelt kan hanteras av två personer. Väggblocken levereras med eventuella dörrar och fönster monterade (om ej annat valts). Våra block levereras med 145 mm stomme med isolering och fuktspärr monterad. Ytterligare invändig regel och isolering levereras löst för montage på plats. Du kan alltid göra egna val hur du vill ha just din byggsats. Din materialbeskrivning i din offert och ditt avtal beskriver din valda byggsats.
Som stomrest (färdigt utvändigt)
För dig som snabbt vill ha upp ett vädersäkrat och tätt skal erbjuder vi stomrest leverans. Tillsammans med våra duktiga entreprenörer tar vi hand om:
- Leverans av byggsats i blocksystem
- Montering av levererad byggsats ovan grund
Du har alltid möjlighet att välja bort delar från vår leverans om du vill lösa vissa delar själv. I ditt avtal eller din offert anges alltid vad som ingår från oss.
