Logotyp

Attefallshus 29945

Attefallshus i lantlig stil med stort sovrum ett badrum och kök/vardagsrum. Ett perfekt hus för tonårsbooende, gäster eller uthyrning
5.1 m x 9.7 m
50 m2
44 m2
3 m
4.1 m
Se planlösning

Från 325 283 kr

Inkl moms. Exklusive frakt, montage och inredning *

Se vad som ingår Få offert Rita vidare & få pris

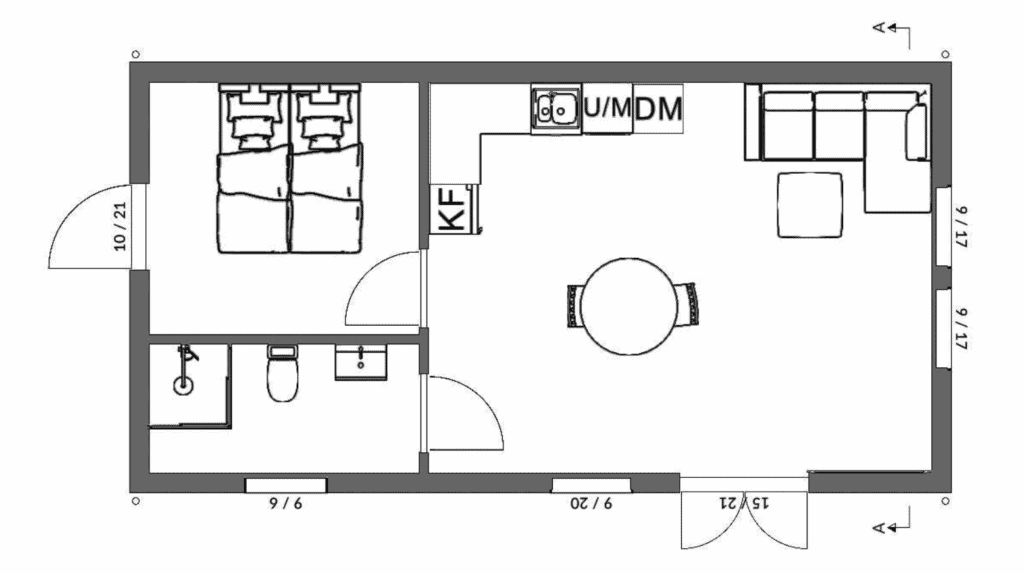
Planlösning

Planlösning

Om byggnaden

Ett vackert attefallshus i modern lantlig stil med kort takfot. Detta hus har en byggyta som passar för reglerna om 50 kvm attefallshus utanför detaljplanerat område. Attefallshuset har stora fönster som släpper in mycket ljus och skapar en rymlig känsla där utsikten alltid är närvarande. Här finner du ett sovrum för dubbelsäng där du även får plats med garderob. På toaletten finns plats för dusch. Kök och vardagsrum har en vacker utsikt genom de stora fönstren och den glasade dubbeldörren som också utgör entré till huset. Här får ni en fantastisk gäststuga för vänner och familj, ett tonårsboende utöver det vanliga eller varar inte en steg att hyra ut och ge en bra extrainkomst.

Ändra utseende

Vill ni ta bort eller lägga till fler fönster? Vill du måla huset i en annan färg ut eller ändra planlösning? Öppna det i vårt ritsystem och ändra som du vill.

Vad kostar det nyckelfärdigt?

När du beställer ett hus av oss på Mellby Home kan vi hjälpa dig fram till färdigt skal. Interiör, planering av tomt m.m. kan du få pris av en entreprenör eller kanske gör du detta själv. Använd gärna vår smarta husbyggarkalkyl för att skapa en budget eller produktionskostnadskalkyl till banken.

Denna modell består av

Våra byggsatser är lätta att montera och levereras kompletta. Här kan du se vad just denna modell består av. Du kan alltid ändra på ingående material genom att ändra i vårt ritsystem eller ringa oss på 0322-41800 så hjälper vi till.

  • Väggblock, 68 × 145 mm stomme, vindskydd, luftläkt. Levereras med 145 mm isolering monterad i blocken samt diffusionsplast.
  • Stående spårpanel, grundmålad Falu rödfärg. Monterad på väggblock.
  • Spånskiva och gips till insida vägg. Levereras löst.
  • Den totala väggtjockleken är 214 mm.
  • Fönster från Elitfönster, aluminiumklädda med U-värde 1,0. Antal och mått enligt planritning. Levereras monterade i väggblock. Utvändiga foder och plåtar levereras monterade
  • Fönsterdörr, dubbeldörr,  från Elitfönster, aluminiumklädd, U-värde 1,0. Antal och mått enligt planritning. Levereras löst till färdig öppning.
  • Fribärande, CE-märkta fackverkstakstolar med öppna takfötter.
  • Yttertak består av underlagstak av råspontluckor, takduk och betongpannor från Benders.
  • Innertak med diffusionsplast, glesreglar och 13 mm gipsskivor, isolering 240 mm.
  • Vindskivor av trä med täckplåt.
  • Takavvattning, rännor och stuprör i plåt.
  • Sylltätning.
  • Ventiler för ventilation av vinden.
  • Spik, skruv och infästningsbeslag.

Vill du ändra utförande eller lägg till grund  samt se vad montage kostar? klicka här för att konfigurera din byggnad.

Väldigt enkelt att bygga attefall själv men går att få monterat.

Våra byggsatser är väldigt enkla att bygga och det går snabbt. Tack vare färdiga väggblock med fönster och dörrar monterade i blocken får du snabbt ett tätt attefallshus eller attefallsgarage på kort tid. Du kan även få hjälp av oss att göra markarbete, anlägga grund och montera ditt attefallshus eller attefallsgarage. Vill du få en offert med mer än bara byggsats, diskutera lösningar som passar dina behov och få tips inför ditt projekt?

Ring oss på 0322-41800 eller mejla oss på info.sv@mellbyhome.com.

Material och tillval

Våra byggsatser är tillverkade i Sverige med material från ledande leverantörer. Våra byggsatser gör det enkelt och snabbt att bygga och fönster och dörrar är monterade i blocken. Här kan du läsa om vad som ingår och vilka tillval du kan göra. Kontakta oss om du har några frågor.

Läs mer

Attefallshus 29945

Få offert Rita vidare & få pris