Logotyp

Enplanshus 30737

Enplanshus i klassisk stil med två utbyggnader. Ett symmetriskt och vackert hus med spröjsade fönster och med klassisk hattläkt.
12.1 m x 18.1 m
174 m2
155 m2
3 st
2 st
3.0 m
5.3 m
Se planlösning

Från 964 317 kr

Inkl moms. Exklusive frakt, montage och inredning *

Se vad som ingår Få offert Rita vidare & få pris

Planlösning

Planlösning

Om byggnaden

Denna klassiska villa med två utbyggnader är ett vackert hus med symmetri. De spröjsade fönstren vid entrén tillsammans med  en vacker dubbeldörr och den klassiska panelen med hattläkt skapar en romantisk helhet.

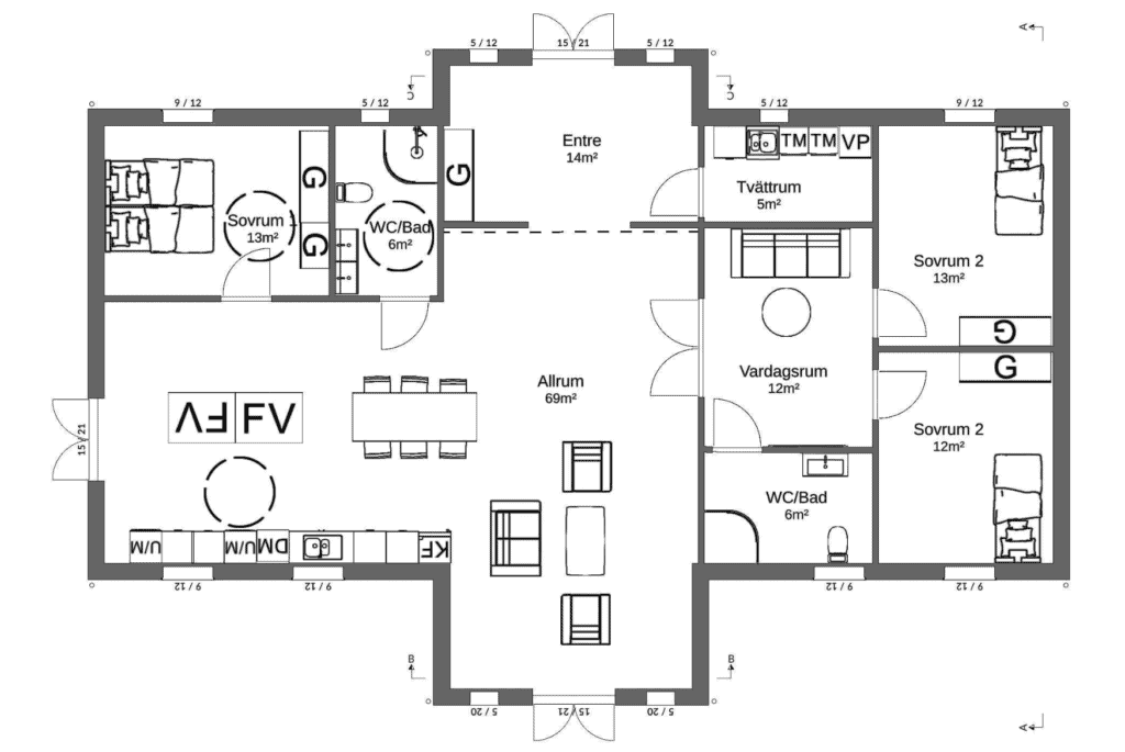
Den utskjutande entrén med dubbeldörrarna ger ett ståtlig och välkomnande intryck. När du klivit in i huset möts du av en rymlig hall där du har utrymme för klädpåtagning för familjen. Till höger ligget tvättstugan. Redan i entrén får du vyn tvärs genom huset mot de stora fönstren där vi placerat soffgruppen. Det ger en luftig och välkomnande känsla. Ett stort kök med en väl tilltagen köksö blir hjärtat i huset och matsalsbordet har vi placerat för att skapa en linje med köksön och här finns plats för stora middagar med häng runt köksö och matbord. Efter middagen flyttar man över till sittgruppen där man kan njuta av utsikten över trädgården.

Master bedroom och ett stort badrum finns i anslutning till köket och lita åtskiljt från övriga sovrum. Vi har skapat ett litet tv-rum eller lekrum varifrån du når två rymliga sovrum och ett badrum. Med dubbeldörrarna kan ni välja att ha det öppet och knyta samman huset eller att stänga exempelvis om barnen vill ha eget häng. Detta är ett välplanerat och praktiskt hem där rummen är tillräckligt stora för att också få plats med garderober.

Ändra utseende

Vill du förändra  planlösningen eller göra huset större? Vill du flytt eller lägga till fler fönster? kanske byta färg på fönster och dörrar? Öppna det i vårt ritsystem och ändra som du vill.

Vad kostar det nyckelfärdigt?

När du beställer ett hus av oss på Mellby Home kan vi hjälpa dig fram till färdigt skal. Interiör, planering av tomt m.m. kan du få pris av en entreprenör eller kanske gör du detta själv. Använd gärna vår smarta husbyggarkalkyl för att skapa en budget eller produktionskostnadskalkyl till banken.

Denna modell består av

Våra byggsatser är lätta att montera och levereras kompletta. Här kan du se vad just denna modell består av. Du kan alltid ändra på ingående material genom att ändra i vårt ritsystem eller ringa oss på 0322-41800 så hjälper vi till.

  • Väggblock, 68 × 145 mm stomme, vindskydd, luftläkt. Levereras med 145 mm isolering monterad i blocken samt diffusionsplast.
  • Stående panel med hattläkt, grundmålad vit. Monterad på väggblock.
  • Extra regel samt isolering för ytterligare 70 mm isolering.
  • Spånskiva och gips till insida vägg. Levereras löst.
  • Den totala väggtjockleken är 284 mm.
  • Fönster från Elitfönster, aluminiumklädda med U-värde 1,0. Antal och mått enligt planritning. Levereras monterade i väggblock med utvändiga foder och plåtar.
  • Fönsterdörr dubbeldörr från Elitfönster, aluminiumklädd, U-värde 1,0. Antal och mått enligt planritning. Levereras löst till färdigt hål med utvändiga foder och plåtar.
  • Ytterdörr dubbeldörr från Ekodoor U-värde 1,1. Antal och mått enligt planritning. Levereras löst till färdigt hål med utvändiga foder och plåtar.
  • Fribärande, CE-märkta fackverkstakstolar med öppna takfötter.
  • Yttertak består av underlagstak av råspont, takduk och betongpannor från Benders.
  • Innertak med diffusionsplast, glesreglar och 13 mm gipsskivor, förberett för isolering med lösull.
  • Vindskivor av trä med täckplåt.
  • Takavvattning, rännor och stuprör i plåt.
  • Sylltätning.
  • Ventiler för ventilation av vinden.
  • Spik, skruv och infästningsbeslag.

Vill du ändra eller lägg till material samt se vad montage kostar? klicka här för att konfigurera din byggnad.

Väldigt enkelt att bygga hus själv men går att få monterat.

Våra byggsatser är väldigt enkla att bygga och det går snabbt. Tack vare färdiga väggblock med fönster och dörrar monterade i blocken får du snabbt ett tätt enplanshus eller tvåplanshus på kort tid. Du kan även få hjälp av oss att göra markarbete, anlägga grund och montera ditt bostadshus. Vill du få en offert med mer än bara byggsats, diskutera lösningar som passar dina behov och få tips inför ditt projekt?

Ring oss på 0322-41800 eller mejla oss på info.sv@mellbyhome.com.

Material och tillval

Våra byggsatser är tillverkade i Sverige med material från ledande leverantörer. Våra byggsatser gör det enkelt och snabbt att bygga och fönster och dörrar är monterade i blocken. Här kan du läsa om vad som ingår och vilka tillval du kan göra. Kontakta oss om du har några frågor.

Läs mer

Enplanshus 30737

Få offert Rita vidare & få pris