Logotyp

Enplanshus 31332

Enplanshus med vidbyggt dubbelgarage. Detta hus är både snyggt och praktiskt. Här får du ett stort hus med rymligt dubbelgarage, en stor tvättstuga och ett rymligt förråd. Allt innanför husets väggar!
13.4 m x 26.5 m
25 m2
25 m2
1 st
2 st
3 m
4.8 m
Se planlösning

Från 1 096 659 kr

Inkl moms. Exklusive frakt, montage och inredning *

Få offert Rita vidare & få pris

Planlösning

Planlösning

Om byggnaden

Ett stort rymligt enplanshus med plats för familjen och ett ett dubbelgarage med förråd som du kan gå till utan att sätta på sig skorna och gå ut. Dröm!!

Detta hus har den klassiska looken och fungerar både med spröjsade fönster och utan. Det är en maffig vinkelbyggnad där man kan fånga vårsolens varma strålar i hörnet mellan garage och hus.
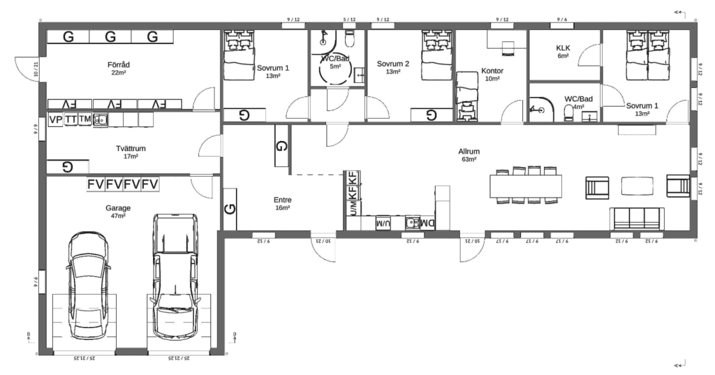
hallen är stor och rymlig, precis som man vill att den ska vara. Gott om förvaringsutrymme finns i hallen men du kan också gå vidare in i tvättstugan där det finne mer utrymme för avhängig. Skulle det inte räcka kan du kliva Vidare in i förrådet där du har plats för julpynt, säsongskläder, leksaker, viner, eller vad du nu vill förvara och ändå ha lättåtkomligt. Med snygga hyllor och garderober samt snygga kartonger och du kan skapa din förvaringshimmel

Och garaget… Ett rymligt dubbelgarage med två motoriserade portar. Måndag morgon och ösregn ute, inget problem. Ta något varmt med dig att dricka och kliv ut i garaget, sätt dig i bilen och rulla ut utan att få så mycket som en droppe på dig.

Kök och vardagsrum är en stor öppen del och i fil ligger samtliga sovrum och toaletter. Alla sovrummen är väl tilltagna för att passa både små och stora barn. Något som förstärker upplevelsen i huset är ljuset från de stora fönstren och fönsterdörren. De gör att hela köket och vardagsrummet känns extra luftigt och ljust.

 

Denna modell består av

Våra byggsatser är lätta att montera och levereras kompletta. Här kan du se vad just denna modell består av. Du kan alltid ändra på ingående material genom att ändra i vårt ritsystem eller ringa oss på 0322-41800 så hjälper vi till.

  • Väggblock, 68 × 145 mm stomme, vindskydd, luftläkt. Levereras med 145 mm isolering monterad i blocken samt diffusionsplast.
  • Liggande spårpanel, grundmålad vit. Löst levererad.
  • Extra regel samt isolering för ytterligare 70 mm isolering.
  • Spånskiva och gips till insida vägg. Levereras löst.
  • Den totala väggtjockleken är 284 mm.
  • Fönster från Elitfönster, aluminiumklädda med U-värde 1,0. Antal och mått enligt planritning. Levereras monterade i väggblock. Utvändiga foder och plåtar levereras löst.
  • Fönsterdörr från Elitfönster, aluminiumklädd U-värde 1,0. Antal och mått enligt planritning. Levereras monterade i väggblock. Utvändiga foder och plåtar levereras löst.
  • Ytterdörrar från Ekodoor U-värde 1,1. Antal och mått enligt planritning. Levereras monterade i väggblock. Utvändiga foder och plåtar levereras löst.
  • Takskjutport med portmotor antal och storlek enligt planritning.
  • Fribärande, CE-märkta fackverkstakstolar med öppna takfötter.
  • Yttertak består av underlagstak av råspont, takduk, läkt och betongtakpannor.
  • Innertak med diffusionsplast, glesreglar och 13 mm gipsskivor, förberett för isolering med lösull.
  • Vindstrappa.
  • Vindskivor av trä med täckplåt.
  • Takavvattning, rännor och stuprör i plåt.
  • Sylltätning.
  • Ventiler för ventilation av vinden.
  • Spik, skruv och infästningsbeslag.

Vill du ändra eller lägg till material samt se vad montage kostar? klicka här för att konfigurera din byggnad.

Väldigt enkelt att bygga hus själv men går att få monterat.

Våra byggsatser är väldigt enkla att bygga och det går snabbt. Tack vare färdiga väggblock med fönster och dörrar monterade i blocken får du snabbt ett tätt enplanshus eller tvåplanshus på kort tid. Du kan även få hjälp av oss att göra markarbete, anlägga grund och montera ditt bostadshus. Vill du få en offert med mer än bara byggsats, diskutera lösningar som passar dina behov och få tips inför ditt projekt?

Ring oss på 0322-41800 eller mejla oss på info.sv@mellbyhome.com.

Enplanshus 31332

Få offert Rita vidare & få pris