Logotyp

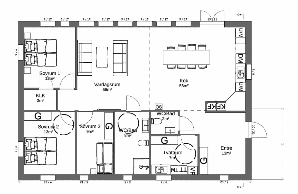
Planlösning

Planlösning

Om byggnaden

1-planshus med en härligt öppen planlösning och fantastisk ljus från alla fönster som pryder hela långsidan. Här finns möjlighet till en fantastisk utsikt över natur och omgivningar.

Entrén är rymlig och gjord för att rymma ytterkläder och utrustning för familjen. Från entrén når du lilla toaletten och tvättstugan som även den erbjuder förvaring. Det rymliga köket och vardagsrummet erbjuder en underbar utsikt mot omgivningarna. här kan du duka för stora middagar och även mysa med bara familjen framför brasan. Alla sovrum har fått utrymme för garderober och master bedroom har fått en egen klädkammare. Det hus har skapas för att passa både som åretruntboende och som fritidshus. Alla våra hus har isolering ör åretruntbostad som standard men du kan välja tjockare eller tunnare isolering om så önskas.

Ändra utseende

Gillar du planlösningen men vill ha ett hus med sadeltak? Vill du ha fler eller färre fönster? Öppna det i vårt ritsystem och ändra som du vill.

Vad kostar det nyckelfärdigt?

När du beställer ett hus av oss på Mellby Home kan vi hjälpa dig fram till färdigt skal. Interiör, planering av tomt m.m. kan du få pris av en entreprenör eller kanske gör du detta själv. Använd gärna vår smarta husbyggarkalkyl för att skapa en budget eller produktionskostnadskalkyl till banken.

Upplev i AR

På din smartphone eller platta klickar du och öppnar  byggnaden i vårt ritsystem. Klicka på knappen AR i vänstra övre hörnet. Placera huset på din tomt, gör en rundtur i huset och upplev hur utsikten genom fönstren kommer att bli.

Det här ingår i våra leveranser

Ingående material är det som i slutänden avgör om ett hus är dyrt eller billigt. Här kan du läsa om vad vi inkluderar i våra leveranser.

  • Väggblock, 68 × 145 mm stomme, vindskydd, luftläkt. Levereras med 145 mm isolering monterad i blocken samt diffusionsplast.
  • Stående spårpanel, grundmålad vit. Monterad på väggblock med foder och smygar.
  • Extra regel samt isolering för ytterligare 70 mm isolering.
  • Spånskiva och gips till insida vägg. Levereras löst.
  • Den totala väggtjockleken är 284 mm.
  • Fönster från Elitfönster, aluminiumklädda med U-värde 1,0. Antal och mått enligt planritning. Levereras monterade i väggblock. Utvändiga foder och plåtar levereras monterade.
  • Fönsterdörr från Elitfönster, aluminiumklädd U-värde 1,0. Antal och mått enligt planritning. Levereras monterade i väggblock. Utvändiga foder och plåtar levereras monterade.
  • Ytterdörrar från Ekodoor U-värde 1,1. Antal och mått enligt planritning. Levereras monterade i väggblock. Utvändiga foder och plåtar levereras monterade.
  • Fribärande, CE-märkta fackverkstakstolar med öppna takfötter.
  • Yttertak består av underlagstak av råspont, takduk, läkt och betongtakpannor.
  • Innertak med diffusionsplast, glesreglar och 13 mm gipsskivor, förberett för isolering med lösull.
  • Vindstrappa.
  • Vindskivor av trä med täckplåt.
  • Takavvattning, rännor och stuprör i plåt.
  • Sylltätning.
  • Ventiler för ventilation av vinden.
  • Spik, skruv och infästningsbeslag.

Vill du ändra eller lägg till material samt se vad montage kostar? klicka här för att konfigurera din byggnad.

Ingående material

Grund

En bra grund är en mycket viktig start. Vi erbjuder flera olika tjocklekar på plattan vilket gör att du kan välja den isoleringstjocklek som passar ditt användningsområde.

Grundläggningspaket

Grunden till din byggnad är viktig, den ska bära upp ditt garage, hus eller fritidshus i kanske 100 år. Med våra grundläggningspaket har vi gjort det ännu enklare att bygga.

Mellby Home erbjuder dig ett komplett grundläggningspaket från Benders där du själv kan välja den isoleringstjocklek som passar för ditt användande. Du får en grundplatta av högsta kvalitet som dessutom är enkel att sätta så att du, om du vill, själv kan gjuta din grund till din byggnad.

Fem olika taktyper

Våra hus finns med följande taktyper. I vårt ritverktyg eller offertförfrågan kan du själv konfigurera kombinationen av byggnad och tak.

Sadeltak

Saxtak (rest innertak)

Pulpettak

Ryggställt pulpettak

Valmat tak

Alla våra takstolar är CE-märkta. I standardutförandet är de dimensionerade för att klara snötyngd i snözon 2,5 men kan anpassas för högre snözon.

Väggar

Alla väggar till våra monteringsfärdiga hus levereras i färdiga moduler, normal bredd 1200 mm.

Väggarna är uppbyggda av:

  • Regelstomme
  • Luftningsläkt (viktigt för att ytterpanelen inte skall ruttna när du har en isolerad byggnad).
  • Isolering i vald tjocklek.
  • Fiberarmerat slitstarkt vindskydd.
  • Panel och syllisolering mot grunden.
  • Dörrar och fönster är monterade i väggelementen från fabrik om ej annat har valts.
  • 12 mm spånskiva – löst levererad
  • 13 mm gips – Löst levererad som ytskikt

Vi har flera val för uppbyggnad av vägg, i din materialbeskrivning som du får med din offert och avtal beskrivs den uppbyggnad som valts för just ditt projekt.

Dörrar och fönster

Du väljer själv vad som ska ingå när du gör en offertförfrågan. I din offert får du alltid med en materialbeskrivning som listar de val som du har gjort för ditt hus, fritidshus, garage eller carport.

Fönster

Vi levererar aluminiumklädda fönster från Elitfönster som standard. Dina fönster med max bredd 900 mm levereras monterade i väggblocken med yttre foder och droppbleck av färdiglackerad stålplåt monterade från fabrik. Vid liggande panel levereras foder och droppbleck löst. Välj själv hur många fönster och vilken utformning du vill ha för att få rätt ljusinsläpp och för att få rätt utseende på din byggnad. Din materialbeskrivning som följer med offert och avtal anger vilka fönster du valt till din byggnad och hur de kommer att levereras.

Ytterdörrar

Våra ytterdörrar kommer från det svenska företaget Ekodoor och levereras monterade i väggblocken med utvändiga foder och droppbleck av lackerad stålplåt. Vid liggande panel på ytterväggarna levereras foder och droppbleck löst.  Vid bredare dörrar än 1000 mm eller dubbeldörrar levereras dessa lösa med färdiga dörrhål. För hus ingår ej låscylinder eller trycke eftersom man oftast väljer egen låsserie och de flesta vill själva välja trycken. Din materialbeskrivning som följer med offert och avtal anger vilka dörrar som valts och hur de levereras.

Leveransformer

När du köper en byggnad av Mellby Home får du en byggnad av hög kvalitet med marknadens bästa garantier och en leverans som alltid är komplett, direkt till byggplatsen.

Som byggsats

Byggsatsen vi levererar hem till din tomt är lättmonterad och anpassad för både snickare och hemmabyggare. Eftersom våra väggblock håller en hög ”färdiggrad” tar det också kortare tid att montera våra byggnader och därmed blir inte bara byggsatsen utan hela projektet billigare.

Våra väggblock består av färdiga byggelement som är mestadels 1,20 m breda och som enkelt kan hanteras av två personer. Väggblocken levereras med eventuella dörrar och fönster monterade (om ej annat valts). Våra block levereras med 145 mm stomme med isolering och fuktspärr monterad. Ytterligare invändig regel och isolering levereras löst för montage på plats. Du kan alltid göra egna val hur du vill ha just din byggsats. Din materialbeskrivning i din offert och ditt avtal beskriver din valda byggsats.

Som stomrest (färdigt utvändigt)

För dig som snabbt vill ha upp ett vädersäkrat och tätt skal erbjuder vi stomrest leverans. Tillsammans med våra duktiga entreprenörer tar vi hand om:

  • Leverans av byggsats i blocksystem
  • Montering av levererad byggsats ovan grund

Du har alltid möjlighet att välja bort delar från vår leverans om du vill lösa vissa delar själv. I ditt avtal eller din offert anges alltid vad som ingår från oss.