Logotyp

Parhus 1,5-plan 18377

Parhus 1,5-plan i vacker ladhusstil. Ett stilfullt parhus som passar barnfamiljer med upp till 2 barn.
8.7 m x 18.1 m
157 m2
121 m2
Se planlösning

Från 1 162 561 kr

Inkl moms. Exklusive frakt, montage och inredning *

Se vad som ingår Få offert Rita vidare & få pris

Planlösning

Undervåning

Planlösning undervåning

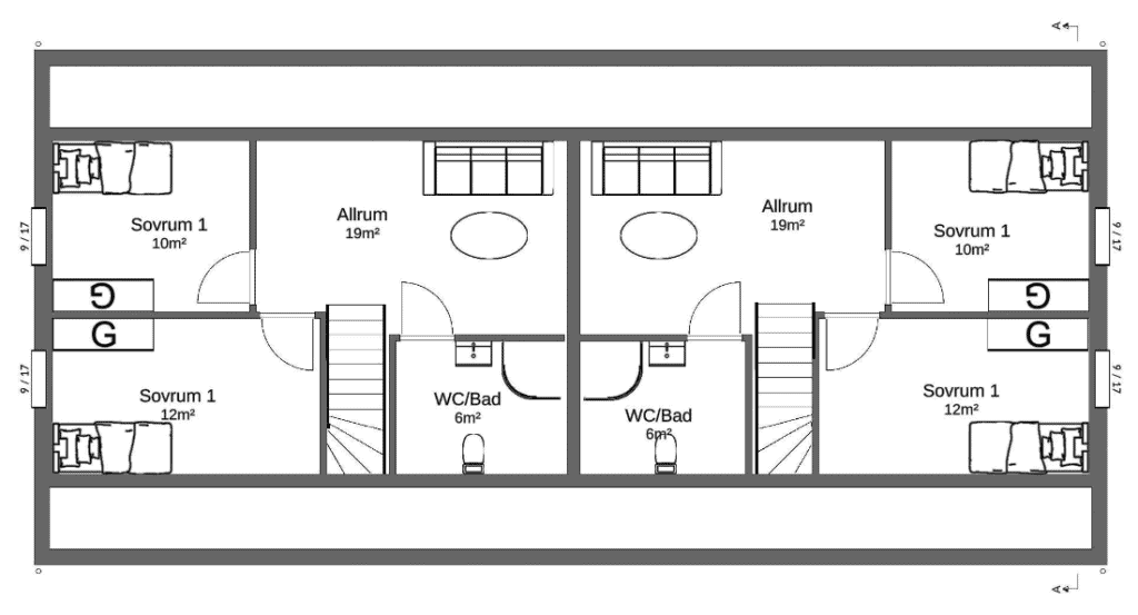
Övervåning

Planlösning övervåning

Om byggnaden

Parhus 1,5-plan i ladhusstil. Stilen som har blivit omåttligt populär skapas med stående spårpanel och  avsaknad av takfot. De stora fönstren på övervåningens gavel ger extra karaktär till detta ladhus.

Planlösningen är välplanerad för en familj med upp till 2 barn. Entrén ger utrymme för klädförvaring och man kan även bygga in trappen och få extra garderob därunder. Tvättstugan har placerats i direkt anslutning till entrén. Här ligger den separerad från övriga huset och gör det enkelt att få in smutsiga ytterkläder direkt i tvättstugan. Master bedroom ligger på nedervåningen nära badrummet. Kök och vardagsrum har fått en öppen planlösning med ljusinsläpp och utsikt genom de stora fönstren och fönsterdörren.

Övervåningen rymmer två sovrum och ett TV-rum samt ett rymligt badrum. Takfönstren ger ljus till övervåningen samt är ett vackert inslag. Extra lyxigt känns det med de stora fönstren i sovrummen som ger möjlighet till en fin utsikt.

Ändra utseende

Vill ni se hur huset ser ut med spröjsade fönster eller med ett plåttak? Vill du bygga ut, ändra planlösning eller förlänga det till ett radhus? Öppna det i vårt ritsystem och ändra som du vill.

Vad kostar det nyckelfärdigt?

När du beställer ett hus av oss på Mellby Home kan vi hjälpa dig fram till färdigt skal. Interiör, planering av tomt m.m. kan du få pris av en entreprenör eller kanske gör du detta själv. Använd gärna vår smarta husbyggarkalkyl för att skapa en budget eller produktionskostnadskalkyl till banken.

Denna modell består av

Våra byggsatser är lätta att montera och levereras kompletta. Här kan du se vad just denna modell består av. Du kan alltid ändra på ingående material genom att ändra i vårt ritsystem eller ringa oss på 0322-41800 så hjälper vi till.

  • Väggblock, 68×145 mm stomme, vindskydd, luftläkt och stående spårpanel, grundmålad vit. Levereras med 145 mm isolering monterad i blocken samt diffusionsplast.
  • Extra regel samt isolering för ytterligare 70 mm isolering (installationsskikt). Levereras löst
  • Spånskiva och gips till insida yttervägg. Levereras löst.
  • Den totala väggtjockleken är 284 mm.
  • Bjälklag mellan under och övervåning 45×220 mm. Med golvspånskivor och 70 mm stegdämpande isolering.
  • Aluminiumklädda fönster från Elitfönster med U-värde 1,0. Antal och storlek enligt planritning. Levereras monterade i väggblock med utvändiga smygar, foder och plåtar.
  • Aluminiumklädd fönsterdörr från Elitfönster. Antal och storlek enligt planritning. Levereras monterade I väggblock med utvändiga smygar, foder och plåtar.
  • Takfönster Fakro: Antal och storlek enligt planritning.
  • 2 st. ytterdörrar från Diplomat Dörrar. Levereras monterade i väggblock med utvändiga smygar, foder och plåtar.
  • Färdigpanelade gavelspetsar.
  • Fribärande, CE-märkta ramtakstolar med öppna takfötter.
  • Yttertak består av underlagstak av råspontluckor, takduk, läkt och betongtakpannor.
  • Innertak med diffusionsplast, glesreglar och 13 mm gipsskivor, förberett för isolering med lösull.
  • Snedtak övervåning 285 mm isolering, 12mm spånskiva samt 13 mm gipsskivor.
  • Vindstrappa, 1st.
  • Vindskivor av trä med täckplåt.
  • Takavvattning, rännor och stuprör i plåt.
  • Sylltätning.
  • Ventiler för ventilation av vinden.
  • Spik, skruv och infästningsbeslag.

Vill du ändra eller lägg till material samt se vad montage kostar? klicka här för att konfigurera din byggnad.

Väldigt enkelt att bygga flerbostadshus själv men går att få monterat.

Våra byggsatser är väldigt enkla att bygga och det går snabbt. Tack vare färdiga väggblock med fönster och dörrar monterade i blocken får du snabbt ett tätt parhus eller radhus på kort tid. Du kan även få hjälp av oss att göra markarbete, anlägga grund och montera ditt hus. Vill du få en offert med mer än bara byggsats, diskutera lösningar som passar dina behov och få tips inför ditt projekt?

Ring oss på 0322-41800 eller mejla oss på info.sv@mellbyhome.com.

Material och tillval

Våra byggsatser är tillverkade i Sverige med material från ledande leverantörer. Våra byggsatser gör det enkelt och snabbt att bygga och fönster och dörrar är monterade i blocken. Här kan du läsa om vad som ingår och vilka tillval du kan göra. Kontakta oss om du har några frågor.

Läs mer

Parhus 1,5-plan 18377

Få offert Rita vidare & få pris