Fyra olika taktyper
Våra hus finns med följande taktyper. I vårt ritverktyg eller offertförfrågan kan du själv konfigurera kombinationen av byggnad och tak.

Sadeltak

Saxtak (rest innertak)

Pulpettak

Ryggställt pulpettak

Valmat tak
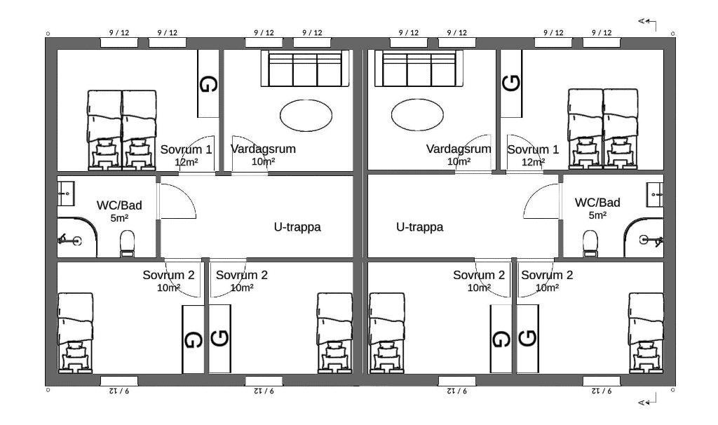
Ett parhus i två plan utformat för att passa barnfamiljer. Den klassiska utformningen passar i såväl lantlig miljö som i villastaden. Med ingång på gavelsidan får man möjlighet att få en fin entré från garagebyggnad på var sida om fastigheten. Det ger även en mer avskild ingång. De många fönstren och den stående spårpanelen ger ett vackert intryck.
Nedervåning
Entrén har utrymme för garderober med skjutdörrar. I nära anslutning till entrén ligger ett badrum med plats för tvättmaskin och torktumlare. Kök med utrymme för ett mindre matbord med utsikt. vardagsrummet har plats för matbord och sittgrupp.
Övervåningen
På övervåningen finns ett separat tv rom och 3 rymliga sovrum. TV-rummet kan även bli ett extra sovrum eller gästrum. toaletten på övervåningen rymmer även dusch.
Ändra utseende
Vill du ändra på planlösningen? Kanske vill du se hur huset ser ut med pulpettak eller vill få ett pris med markarbete och montage? Öppna det i vårt ritsystem, ändra som du vill och få pris direkt.
Vad kostar det nyckelfärdigt?
När du beställer ett hus av oss på Mellby Home kan vi hjälpa dig fram till färdigt skal. Interiör, planering av tomt m.m. kan du få pris av en entreprenör eller kanske gör du detta själv. Använd gärna vår smarta husbyggarkalkyl för att skapa en budget eller produktionskostnadskalkyl till banken.
Ingående material är det som i slutänden avgör om ett hus är dyrt eller billigt. Här kan du läsa om vad vi inkluderar i våra leveranser.
Vill du ändra eller lägg till material samt se vad montage kostar? klicka här för att konfigurera din byggnad.
Våra hus finns med följande taktyper. I vårt ritverktyg eller offertförfrågan kan du själv konfigurera kombinationen av byggnad och tak.

Sadeltak

Saxtak (rest innertak)

Pulpettak

Ryggställt pulpettak

Valmat tak
Alla väggar till våra monteringsfärdiga hus levereras i färdiga moduler, normal bredd 1200 mm.
Väggarna är uppbyggda av:
Vi har flera val för uppbyggnad av vägg, i din materialbeskrivning som du får med din offert och avtal beskrivs den uppbyggnad som valts för just ditt projekt.
Du väljer själv vad som ska ingå när du gör en offertförfrågan. I din offert får du alltid med en materialbeskrivning som listar de val som du har gjort för ditt hus, fritidshus, garage eller carport.
Vi levererar aluminiumklädda fönster från Elitfönster som standard. Dina fönster med max bredd 900 mm levereras monterade i väggblocken med yttre foder och droppbleck av färdiglackerad stålplåt monterade från fabrik. Vid liggande panel levereras foder och droppbleck löst. Välj själv hur många fönster och vilken utformning du vill ha för att få rätt ljusinsläpp och för att få rätt utseende på din byggnad. Din materialbeskrivning som följer med offert och avtal anger vilka fönster du valt till din byggnad och hur de kommer att levereras.
Våra ytterdörrar kommer från det svenska företaget Ekodoor och levereras monterade i väggblocken med utvändiga foder och droppbleck av lackerad stålplåt. Vid liggande panel på ytterväggarna levereras foder och droppbleck löst. Vid bredare dörrar än 1000 mm eller dubbeldörrar levereras dessa lösa med färdiga dörrhål. För hus ingår ej låscylinder eller trycke eftersom man oftast väljer egen låsserie och de flesta vill själva välja trycken. Din materialbeskrivning som följer med offert och avtal anger vilka dörrar som valts och hur de levereras.
En bra grund är en mycket viktig start. Vi erbjuder flera olika tjocklekar på plattan vilket gör att du kan välja den isoleringstjocklek som passar ditt användningsområde.
Grunden till din byggnad är viktig, den ska bära upp ditt garage, hus eller fritidshus i kanske 100 år. Med våra grundläggningspaket har vi gjort det ännu enklare att bygga.
Mellby Home erbjuder dig ett komplett grundläggningspaket från Benders där du själv kan välja den isoleringstjocklek som passar för ditt användande. Du får en grundplatta av högsta kvalitet som dessutom är enkel att sätta så att du, om du vill, själv kan gjuta din grund till din byggnad.
När du köper en byggnad av Mellby Home får du en byggnad av hög kvalitet med marknadens bästa garantier och en leverans som alltid är komplett, direkt till byggplatsen.
Byggsatsen vi levererar hem till din tomt är lättmonterad och anpassad för både snickare och hemmabyggare. Eftersom våra väggblock håller en hög ”färdiggrad” tar det också kortare tid att montera våra byggnader och därmed blir inte bara byggsatsen utan hela projektet billigare.
Våra väggblock består av färdiga byggelement som är mestadels 1,20 m breda och som enkelt kan hanteras av två personer. Väggblocken levereras med eventuella dörrar och fönster monterade (om ej annat valts). Våra block levereras med 145 mm stomme med isolering och fuktspärr monterad. Ytterligare invändig regel och isolering levereras löst för montage på plats. Du kan alltid göra egna val hur du vill ha just din byggsats. Din materialbeskrivning i din offert och ditt avtal beskriver din valda byggsats.
För dig som snabbt vill ha upp ett vädersäkrat och tätt skal erbjuder vi stomrest leverans. Tillsammans med våra duktiga entreprenörer tar vi hand om:
Du har alltid möjlighet att välja bort delar från vår leverans om du vill lösa vissa delar själv. I ditt avtal eller din offert anges alltid vad som ingår från oss.